Pomoc s návrhem HO/2,6x1,8

Fórum pro stavbu, přestavbu a provoz modelového kolejiště.

Moderátoři: StandaR, milan ferdián, Michal Dalecký, Jarda H.

Re: Pomoc s návrhem HO/2,6x1,8

Příspěvekod milan ferdián » pon 12 srp, 2013 1:18 pm

Jiri Dvoracek píše:Nechci byt pesimista, ale predstavit si koncove nadrazi s depem na plose 150x90 cm a jeste k tomu v HO si dost dobre nedovedu. Ale mozna se mylim :)

Nemýlíš,geometrie kolejiva je neoblomná.
milan ferdián
 
Příspěvky: 12189
Registrován: ned 30 pro, 2007 5:48 pm

Re: Pomoc s návrhem HO/2,6x1,8

Příspěvekod Jiri Dvoracek » pon 12 srp, 2013 1:25 pm

milan ferdián píše:Nemýlíš,geometrie kolejiva je neoblomná.


Ja osobne bych doporucil presun nabytku a to jak skrini, tak i posteli. I kdyz jsou plne obleceni, tak neni nic tezkeho obleceni vyndat a pak vratit zpet. A pokud jsou ty sestrenice jeste nedospele, tak bych dve postele nahradil jednou dvoupatrovou :wink: A budes mit prostor, ze ho ani nezastavis :mrgreen:
TT - digital, CD, ZSR a OBB, epocha V a VI, Digitrax a JMRI
Jiri Dvoracek
 
Příspěvky: 1168
Registrován: ned 03 čer, 2012 12:20 pm
Bydliště: Valašské Meziříčí, CZ

Re: Pomoc s návrhem HO/2,6x1,8

Příspěvekod milan ferdián » pon 12 srp, 2013 3:09 pm

Menší úprava.Jde vidět,že plánek je od autora od ruky,viz poměr délek vůči velikostem dílů a nábytků v místnosti.
Přílohy
plánek desky 3.jpg
plánek desky 3.jpg (29.14 KiB) Zobrazeno 6363 krát
milan ferdián
 
Příspěvky: 12189
Registrován: ned 30 pro, 2007 5:48 pm

Re: Pomoc s návrhem HO/2,6x1,8

Příspěvekod RadekH0 » pon 12 srp, 2013 3:11 pm

Jiri Dvoracek píše:
milan ferdián píše:Nemýlíš,geometrie kolejiva je neoblomná.


Ja osobne bych doporucil presun nabytku a to jak skrini, tak i posteli. I kdyz jsou plne obleceni, tak neni nic tezkeho obleceni vyndat a pak vratit zpet. A pokud jsou ty sestrenice jeste nedospele, tak bych dve postele nahradil jednou dvoupatrovou :wink: A budes mit prostor, ze ho ani nezastavis :mrgreen:

To nepůjde, když budu mít štěstí, tak bych mohl ještě přesunout skříň co je úplně napravo. Pak by to bylo asi 150x180 cm. Koncové nádraží s depem by pak bylo do oblouku.
Měřítko TT, epocha: V./VI.
DCC
RadekH0
 
Příspěvky: 506
Registrován: ned 03 bře, 2013 11:37 am
Bydliště: Žďár nad Sázavou

Re: Pomoc s návrhem HO/2,6x1,8

Příspěvekod RadekH0 » pon 12 srp, 2013 3:25 pm

milan ferdián píše:Menší úprava.Jde vidět,že plánek je od autora od ruky,viz poměr délek vůči velikostem dílů a nábytků v místnosti.

Myslím, že na tomto kolejišti není potřeba dělat čtyři mosty, leda že by tam byla dvojkolejná trať. Navíc musí být most co nejdál od dveří, jelikož se dveře otevírají dovnitř do pokoje. A kdybych udělal konečné nádraží s loko. depem v levém horním rohu, tak bych zase neměl místo pro vratnou smyčku(pokud nebudu moct dát pryč dvě skříně).
Měřítko TT, epocha: V./VI.
DCC
RadekH0
 
Příspěvky: 506
Registrován: ned 03 bře, 2013 11:37 am
Bydliště: Žďár nad Sázavou

Re: Pomoc s návrhem HO/2,6x1,8

Příspěvekod milan ferdián » pon 12 srp, 2013 4:04 pm

No bohužel,mi vyšla dětská verze kolejiště.
Přílohy
RadekHO.jpg
milan ferdián
 
Příspěvky: 12189
Registrován: ned 30 pro, 2007 5:48 pm

Re: Pomoc s návrhem HO/2,6x1,8

Příspěvekod RadekH0 » pon 12 srp, 2013 4:30 pm

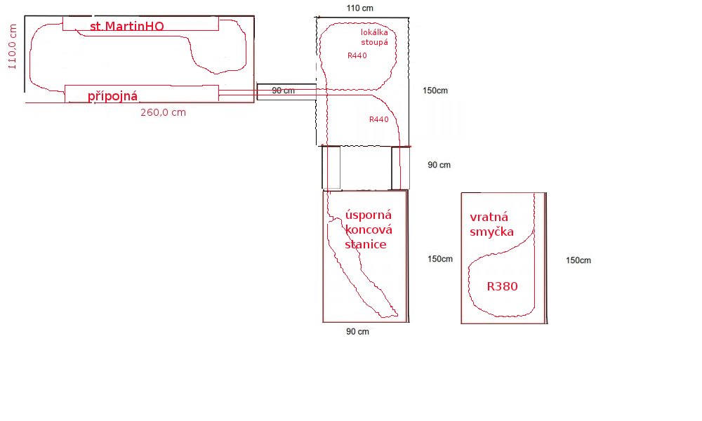
Vypadá to zajímavě, ale těch R380 čtyřosé vagony neprojedou, že?
Měřítko TT, epocha: V./VI.
DCC
RadekH0
 
Příspěvky: 506
Registrován: ned 03 bře, 2013 11:37 am
Bydliště: Žďár nad Sázavou

Re: Pomoc s návrhem HO/2,6x1,8

Příspěvekod milan ferdián » pon 12 srp, 2013 4:35 pm

RadekH0 píše:Vypadá to zajímavě, ale těch R380 čtyřosé vagony neprojedou, že?

No protože R440 tam nedostanu.
milan ferdián
 
Příspěvky: 12189
Registrován: ned 30 pro, 2007 5:48 pm

Re: Pomoc s návrhem HO/2,6x1,8

Příspěvekod Petr Zatrepalek » pon 12 srp, 2013 4:42 pm

No projedou, ale asi s problémy - mám to vyzkoušený na R1 360mm Piko A - starý zkrácený prefo/Sachs Yčko vagon je OK, Yčka Roco špatný (jeden vagon vprostřed soupravy furt vyskakoval), Yčka Sachs/Tillig nezkrácený se chovali v případě čtyřvagonový soupravy OK, kupodivu jsem neměl problém ani s modrými Piko patry, ale bylo to testovaný na rovině a hlavně za obloukem nebo v oblouku nebyla žádná vexle... Problém jsem měl ale s ROCO Němkou a hrbounem - tam už na 360mm mašina vyskočila běhounama. Oblouk 422mm (Piko R2) a větší - tam už jsem žádný problémy neregistroval...
ČSD 1970-1988 v HO, jinak kitařina (éra, tanky), zakázková patinace a stavba modelů
Uživatelský avatar
Petr Zatrepalek
 
Příspěvky: 2681
Registrován: pát 07 zář, 2007 11:20 pm
Bydliště: Sázava - Černé Budy

Re: Pomoc s návrhem HO/2,6x1,8

Příspěvekod Petr Zatrepalek » pon 12 srp, 2013 4:49 pm

ještě doplním - co vím, tak piko A dělá přechodovou kolej na svoje starý plechový U kolejivo - takže v té vratné smyčce bys mohl využít "nového" profilového kolejiva R2=422mm...
ČSD 1970-1988 v HO, jinak kitařina (éra, tanky), zakázková patinace a stavba modelů
Uživatelský avatar
Petr Zatrepalek
 
Příspěvky: 2681
Registrován: pát 07 zář, 2007 11:20 pm
Bydliště: Sázava - Černé Budy

Re: Pomoc s návrhem HO/2,6x1,8

Příspěvekod RadekH0 » pon 12 srp, 2013 5:15 pm

Milane a co tohle?
Přílohy
plánek kolejiště.jpg
Měřítko TT, epocha: V./VI.
DCC
RadekH0
 
Příspěvky: 506
Registrován: ned 03 bře, 2013 11:37 am
Bydliště: Žďár nad Sázavou

Re: Pomoc s návrhem HO/2,6x1,8

Příspěvekod milan ferdián » pon 12 srp, 2013 5:21 pm

RadekH0 píše:Milane a co tohle?

Vpravo nahoře.Přehoď koncovou stanici s tunelem a to takto.Most vyjmutelný - R500 /tvar tratě dle potřeby,před dalším vyjmutelným dílem onu odbočku s koncovou stanici a pokračovat v původním tvém návrhu.Je totiž třeba,aby koncová stanice využila co nejdelší uhlopříčku nebo tvar písmene "J".
milan ferdián
 
Příspěvky: 12189
Registrován: ned 30 pro, 2007 5:48 pm

Re: Pomoc s návrhem HO/2,6x1,8

Příspěvekod milan ferdián » pon 12 srp, 2013 5:30 pm

forex píše:Jen prakticka rada a muj vlastni poznatek,cokoliv sirsi nez 75cm je problamaticke na dosazitelnost, takze v rohu se tam pak nedostanes, kdyz to budes mit pripadne u zdi.....(jako mam ja :D :D :D :D )

Tak bude muset v oblouku R500 zhotovit výřez do rámu třeba R400 a to odečteno od 1100 je 700 a je to :wink: .Platí pro horní pravý roh.
milan ferdián
 
Příspěvky: 12189
Registrován: ned 30 pro, 2007 5:48 pm

Re: Pomoc s návrhem HO/2,6x1,8

Příspěvekod milan ferdián » pon 12 srp, 2013 5:38 pm

forex píše:Kdyz tam ma pred tim koncovou stanici planovanou,tak tam toho moc nevyreze a nebo jsem Te Milane nepochopil uplne spravne :P

Ja uz ve svem pripade konstruuju nejake vznasedlo ..zatim jen v hlave

Ale vždyť jsem psal přehodit oblouk v tunelu s koncovou stanici.
milan ferdián
 
Příspěvky: 12189
Registrován: ned 30 pro, 2007 5:48 pm

Re: Pomoc s návrhem HO/2,6x1,8

Příspěvekod milan ferdián » pon 12 srp, 2013 5:45 pm

Takto.A výřez je v tom oblouku.
Přílohy
plánek kolejiště.jpg
plánek kolejiště.jpg (22.1 KiB) Zobrazeno 6658 krát
milan ferdián
 
Příspěvky: 12189
Registrován: ned 30 pro, 2007 5:48 pm

PředchozíDalší

Zpět na Modelové kolejiště

Kdo je online

Uživatelé procházející toto fórum: Žádní registrovaní uživatelé a 1 návštěvník