Koncová s točnou

Moderátoři: StandaR, milan ferdián, Michal Dalecký, Jarda H.

Re: Koncová s točnou

Příspěvekod PajaF » pon 30 lis, 2020 8:12 pm

Nepochopil, toto je most s dolni mostovkou.
PajaFt
Uživatelský avatar
PajaF
 
Příspěvky: 210
Registrován: sob 31 črc, 2010 4:36 pm
Bydliště: Waier in Sudetenland

Re: Koncová s točnou

Příspěvekod hank » pon 30 lis, 2020 8:48 pm

Horní mostovka je tohle:
primopasovy.jpg

plechac.jpg

fischbauch.jpg


Pojem "horní mostovka" vyjadřuje polohu mostovky vůči hlavnímu nosníku. Tzn., že mosty s horní mostovkou mají mostovku nahoře a nosník pod ní, zatímco u mostů s dolní mostovkou je tomu právě naopak. Ještě pro úplnost - u dráhy jsou i mosty se střední mostovkou, klasickým příkladem je Červená nad Vltavou.
... i my dědci ještě můžeme být všelijak užiteční...
Es ist viel später als du denkst.
hank
 
Příspěvky: 6824
Registrován: stř 24 čer, 2009 4:43 pm

Re: Koncová s točnou

Příspěvekod vojtas » pon 30 lis, 2020 11:29 pm

Realističtější by asi byl most s plnostěnným spodním nosníkem, a opticky nejhezčí asi s nosníkem mezilehlým, ale při velikosti kolejiště jsou zase ty příhrady takové vzdušnější, myslím, že vyloženě chyba se tady dělá težko.
TT
Uživatelský avatar
vojtas
 
Příspěvky: 1356
Registrován: ned 20 čer, 2010 10:32 am
Bydliště: Praha

Re: Koncová s točnou

Příspěvekod hank » úte 01 pro, 2020 7:33 am

vojtas píše:Realističtější by asi byl most s plnostěnným spodním nosníkem, a opticky nejhezčí asi s nosníkem mezilehlým, ale při velikosti kolejiště jsou zase ty příhrady takové vzdušnější, myslím, že vyloženě chyba se tady dělá težko.


Ono taky záleží na epoše. Všudypřítomná příhradovina z konce 19. a začátku 20. století měla předpokládanou životnost 100 let, takže právě v současnosti dožívá a často se nahrazuje právě plnostěnnými ocelovými nosníky. (Nebo taky betonem, ale to už je zase jiný příběh.) Před 100 - 120 lety se používaly příhradové nosníky i na dost krátké konstrukce, takže souhlasím s tím, že ať kolega použije na tento konkrétní most nosník plnostěnný nebo příhradový, neudělá chybu.
... i my dědci ještě můžeme být všelijak užiteční...
Es ist viel später als du denkst.
hank
 
Příspěvky: 6824
Registrován: stř 24 čer, 2009 4:43 pm

Re: Koncová s točnou

Příspěvekod Cesar82 » čtv 03 pro, 2020 3:40 pm

Epochou bych to chtěl postavit do IV. epochy, popřípadě V. epochy.

Pokud jde o ten pevný nosník, tak se bavíme o něčem takovém?

https://mapy.cz/zakladni?x=17.5928866&y ... itch=0.003
Cesar82
 
Příspěvky: 53
Registrován: čtv 07 dub, 2016 4:36 pm
Bydliště: Horní Studénky (okr. Šumperk)

Re: Koncová s točnou

Příspěvekod vojtas » čtv 03 pro, 2020 3:51 pm

Přesně tak
TT
Uživatelský avatar
vojtas
 
Příspěvky: 1356
Registrován: ned 20 čer, 2010 10:32 am
Bydliště: Praha

Re: Koncová s točnou

Příspěvekod Ivan » čtv 03 pro, 2020 4:11 pm

Cesar82 píše:Epochou bych to chtěl postavit do IV. epochy, popřípadě V. epochy.

Pokud jde o ten pevný nosník, tak se bavíme o něčem takovém?

https://mapy.cz/zakladni?x=17.5928866&y ... itch=0.003



Dělá ho KB model (pan Barták,) viz obrázky výše. Stavěl jsem ho, příjemná stavba. Nevím jestli bude stačit délka, s panem Bartakem se dá ale domluvit i na jiné variantě.
TTmini Jizerka III/IV ep. (1.3m2, DR5000, Z21 a MM) ... hlavně že mne to baví!
Uživatelský avatar
Ivan
 
Příspěvky: 2257
Registrován: ned 06 říj, 2013 8:06 am
Bydliště: Praha

Re: Koncová s točnou

Příspěvekod Cesar82 » čtv 03 pro, 2020 4:48 pm

A nemáte náhodou někdo nějaký výkres k těm mostům?

Chtěl bych tím zabít co nejvíce zimních večerů, takže bych to zkusil nejdřív vlastními silami a až potom když tak koupit, pokud by to nešlo.
Mám to jako relax na odreagování, takže na to nijak moc nespěchám.

Jinak to ani s dvěma pomocníkama/likvidátorama dělat nejde. Ale i jejich chvíle přijdou, až se bude zelenit.
Cesar82
 
Příspěvky: 53
Registrován: čtv 07 dub, 2016 4:36 pm
Bydliště: Horní Studénky (okr. Šumperk)

Re: Koncová s točnou

Příspěvekod vojtas » čtv 03 pro, 2020 7:01 pm

TT
Uživatelský avatar
vojtas
 
Příspěvky: 1356
Registrován: ned 20 čer, 2010 10:32 am
Bydliště: Praha

Re: Koncová s točnou

Příspěvekod hank » čtv 03 pro, 2020 7:52 pm

Cesar82 píše:A nemáte náhodou někdo nějaký výkres k těm mostům?


Tady máš přímo návod ke scratch stavbě:
https://www.kzm-praha.cz/rady/stavby/ocmost1.zip

Nebo zkus tohle:
http://www.schmalespuren.de/ss-web-v4_002.htm
Sice je to na metrovém rozchodu, ale když dodržíš pravidlo, že výška nosníku má být asi 1/6 jeho rozpětí, můžeš konstrukční prvky použít.

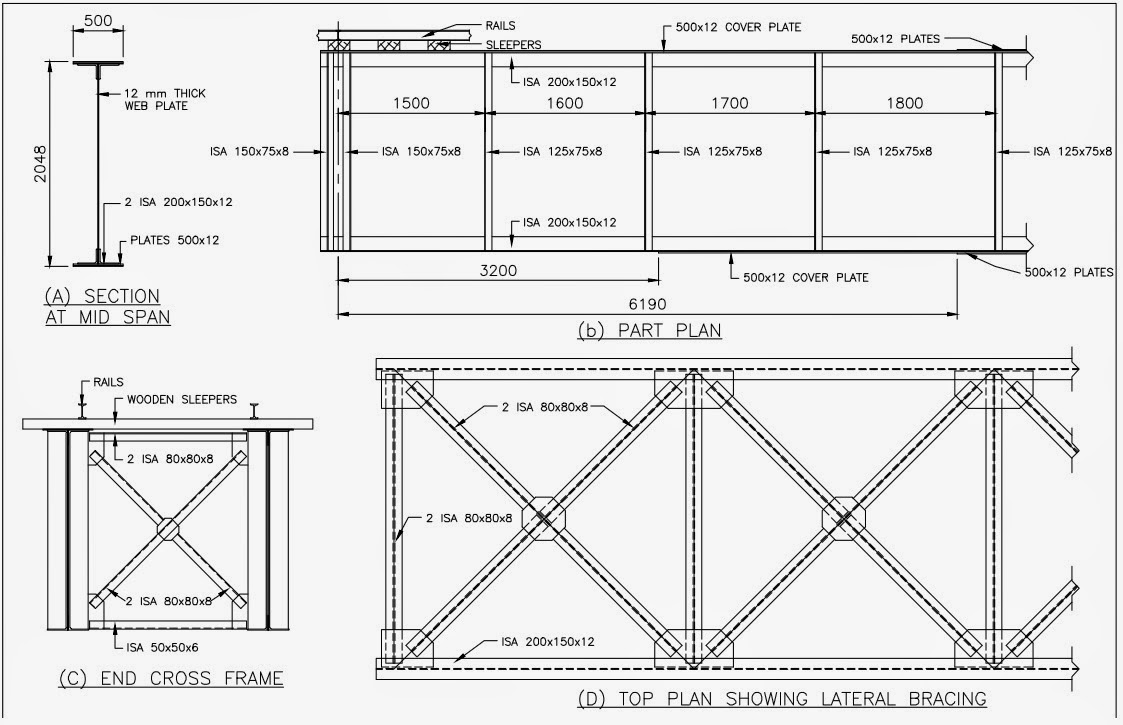
Mohlo by se ti taky hodit třeba tohle:
Design a deck type plate girder railway bridge for single tract.jpg


Kdyby ti stačily kratší konstrukce, tak pruské dráhy KPEV měly na přelomu 19. a 20. století sbírku normálií mostních konstrukcí světlosti 1 - 9 m. Můžu poslat, když mi napíšeš kam..

Kdyby sis chtěl započítat sám, stavební a dopravní fakulty/katedry skoro všech zdejších technik mají na netu vystavená příslušná skripta. Klíčový pojem: návrh ocelového nosníku. (Dokonce je k tomu k mání i prográmek, který to počítám sám: https://www.instaluj.cz/nosnik)https://www.instaluj.cz/nosnik

A pak ještě taky mostaři mívají různé konference a vydávají z nich sborníky, kde jsou popisy a výkresy novostaveb i rekonstrukcí nejrůznějších mostů. Zkus třeba http://www.mosty.cz.
... i my dědci ještě můžeme být všelijak užiteční...
Es ist viel später als du denkst.
hank
 
Příspěvky: 6824
Registrován: stř 24 čer, 2009 4:43 pm

Re: Koncová s točnou

Příspěvekod Cesar82 » ned 09 led, 2022 6:33 pm

Tak jsem využil čas, který mi poskytl ten zákeřný virus a opět po čase trochu postoupil s prací:
Přílohy
20220109_123824-1.jpg
Hrany sypaného nástupiště. Od nástupiště povede pěšina k staniční budově. Ta bude tam, kde stojí ono torzo.
20220109_123805-2.jpg
Zastávka u tunelu. Portál bude kolmo na koleje.
20220109_123812-1.jpg
Most přes potok a polní cestu
Cesar82
 
Příspěvky: 53
Registrován: čtv 07 dub, 2016 4:36 pm
Bydliště: Horní Studénky (okr. Šumperk)

Re: Koncová s točnou

Příspěvekod Cesar82 » ned 10 dub, 2022 6:20 pm

Tak jsem využil posledních dní, kdy se venku počasí úplně zbláznilo a doslovně naplňuje svůj aprílový charakter a vytvořil toto:
Přílohy
skladiště.jpg
Cesar82
 
Příspěvky: 53
Registrován: čtv 07 dub, 2016 4:36 pm
Bydliště: Horní Studénky (okr. Šumperk)

Re: Koncová s točnou

Příspěvekod Cesar82 » ned 10 dub, 2022 6:20 pm

Je to model pro 3D tisk, tak jsem zvědav.
Cesar82
 
Příspěvky: 53
Registrován: čtv 07 dub, 2016 4:36 pm
Bydliště: Horní Studénky (okr. Šumperk)

Re: Koncová s točnou

Příspěvekod Ivan » ned 10 dub, 2022 7:09 pm

Neměly by ty schůdky začínat až s koncem budovy? Dřevěná rampa taky mivala sloupky na podepření.
Na tisk jsem jinak zvědavý :wink:
TTmini Jizerka III/IV ep. (1.3m2, DR5000, Z21 a MM) ... hlavně že mne to baví!
Uživatelský avatar
Ivan
 
Příspěvky: 2257
Registrován: ned 06 říj, 2013 8:06 am
Bydliště: Praha

Re: Koncová s točnou

Příspěvekod Cesar82 » ned 10 dub, 2022 8:34 pm

Podle výkresu z galerie MF u tohohle typu začínají schůdky cca 1,9 m od hrany podezdívky.
Ty sloupky tam jsou, akorád nejdou vidět:
Přílohy
skladiště-detaily.jpg
Cesar82
 
Příspěvky: 53
Registrován: čtv 07 dub, 2016 4:36 pm
Bydliště: Horní Studénky (okr. Šumperk)

PředchozíDalší

Zpět na Mini kolejiště

Kdo je online

Uživatelé procházející toto fórum: Žádní registrovaní uživatelé a 1 návštěvník