Plan kolajiska XII

Moderátoři: StandaR, milan ferdián, Michal Dalecký, Jarda H.

Plan kolajiska XII

Příspěvekod milan ferdián » úte 05 led, 2021 8:48 am

Práce na VI.dílu se rozeběhly a já potřebují někdy si od práce na chvíli odskočit na vedlejšák. Měl jsem ale dilema, plánky kolejišť nezveřejňovat,jen publikovat a druhá možnost zveřejňovat, s tím s vámi neztratit kontakt, ale oficiálně tyto plánky kolejišť v publikacích nevyjdou. (i přesto, že už zde nejsem aktivní, hodně jste mi někteří fandové a fanynky přirostly k srdci). Rozhodl jsem se pro druhou možnost a píší opětovně, když se vám mé kresbičky nebudou zamlouvat, přestanu tvořit. Upozorňuji, že mám dohodu s moderátory, že přiblblé příspěvky smažou.

A co máme na začátek, kolejiště se zdá složité pro začátečníka, ale myslím, že stavbu tak jednoduchého kolejiště by měl zvládnout.

Drnovec N/1:160 1500 x 900 FLEISCHMANN/piccolo/15° zdroj:Hitorimo

Kolejiště je charakterem dětské. Využívá již nakoupeného setu F 936 881. Tvarem je kolejiště ovál s odbočkou do koncové stanice. Kolejiště má skrytou stanici pro dvě vlakové soupravy, jednu skrytou kolej pro jednu až dvě sólo motorové vozy, určené pro osobní dopravu na hlavní trati. Na kolejišti máme mezilehlou stanici, která je domovem sólo motorového vozu. Tento motorový vůz pendluje z této stanice do koncové stanice na lokálce a zpět.  Nástupiště pro motorový vůz je kusá dopravní kolej vedle výpravní budovy. Další kusá kolej odstavná, na té stojí cisterna s naftou a lokomotivní remíza pro náš motorový vůz.
Námětem je trať stoupající do horského sedla do druhého údolí. Před sedlem je situována odbočka s napojením na lokální trať. Koncová stanice slouží jako nakládková pro dlouhé a kusové dříví. Do koncové stanice přijel manipulační vlak a úkolem pozorovatelů je sestavit vracející se manipulační vlak. Letecká manipulace s vozy zakázaná. Motorová lokomotiva, která přijel s manipulákem je řady 704/Lego.
Kolejiště je přístupné ze všech stran.

Jako doplněk je vložena mostní partie, kterou můžeme změnit místo dvou souběžných tratí.
-m-
Přílohy
DF 001 Drnovec krajina.jpg
DF 001 Drnovec mostní partie.jpg
DF 001 Drnovec kolejivo.jpg
milan ferdián
 
Příspěvky: 12189
Registrován: ned 30 pro, 2007 5:48 pm

Re: Plan kolajiska XII

Příspěvekod Dovi » úte 05 led, 2021 9:50 am

 
Pěkná miniatura, byť je to "jen" dětský ovál s odbočkou do koncáku.
A ta odbočka ne v odbočné stanici, ale v půli širé hlavní trati (a navíc v jejím nejvyšším bodě), ho odlišuje od většiny podobných témat.

Hledám náměty a inspiraci pro svá úzkorozchodná H0e kolejišťátka a toto mi padlo do oka, když ho Hitorimo před pár dny prezentoval - ještě nekompletní - ve svém vlákně. Teď po doplnění krajinou to získalo tu klasickou ferdiánovskou malebnost :-)
 
- v dětství H0 a potom N
- teď už si jen občas hraju (nemodelařím) s H0, H0e, H0f, N a TTm, DC+DCC
Uživatelský avatar
Dovi
 
Příspěvky: 794
Registrován: pon 25 kvě, 2020 5:47 am

Re: Plan kolajiska XII

Příspěvekod milan ferdián » sob 09 led, 2021 7:08 pm

... pokračuje se a když vybude trochu času, dokončují se nedodělky.

Petrov I.-II.epocha Bay.Sts.B./DRG H0/1:87 5100 x 4350 PIKO A-Gleis/15°(U.S.)
Přání modeláře bylo žádné skryťáky, využití nakoupených stavebnic Faller, Piko, Auhaugen atd., kolejiva PIKO a točen. Námětem je hlavová stanice Petrov na dvojkolejné trati, končící ve vratné stanici Rozeta. V této stanici je propojení se samostatným nádražíčkem vedoucí na lokální trať končící ve stanici s napojenými přilehlými železničními vlečkami. Na opačnou stranu vede jediná stoupající vedlejší trať končící ve stanici Sivice. Hlavní stanice na dvojkolejné trati a krátké lokálky leží na hodnotě +/-0. Jelikož nešla vytvořit klasická krajina směrem ke stěnám místnosti, musel být vytvořena opačným směrem, dovnitř místnosti. Lokomotivy, vozy osobní a nákladní byly vybrány z katalogů ROCO a MÄRKLÍN.
-m-
Přílohy
Petrov celek DF II.jpg
milan ferdián
 
Příspěvky: 12189
Registrován: ned 30 pro, 2007 5:48 pm

Re: Plan kolajiska XII

Příspěvekod milan ferdián » úte 12 led, 2021 8:48 pm

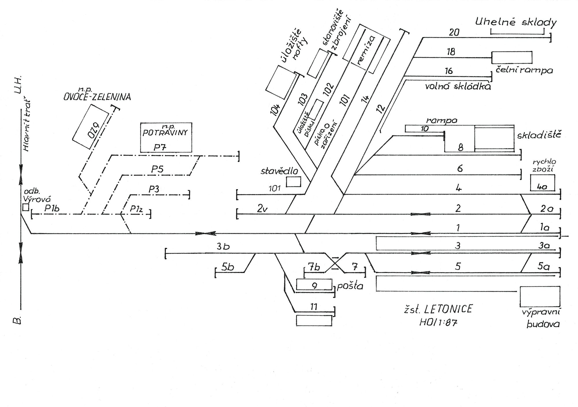
Letonice H0/1:87 2700 x 1600 PIKO A - Gleis/15° (U.S.)
Rychlík "Šohaj" dorazil do svého cíle.......
-m-
Přílohy
Letonice schéma DF.jpg
milan ferdián
 
Příspěvky: 12189
Registrován: ned 30 pro, 2007 5:48 pm

Re: Plan kolajiska XII

Příspěvekod milan ferdián » stř 13 led, 2021 1:53 pm

Letonice IV.epocha H0/1:87 2700 x 1600 PIKO A-Gleis/15° zdroj:Balloo (U.S.)

Rychlík „Šohaj“ dorazil do svého cíle. Přijel až z dalekého Chebu a přes Uherské Hradiště dojel až domů. Zde má jen rychlý obrat. Brejlovec byl odpojen od soupravy. Čekající 735 na koleji 4 už se rozjíždí a jede až před první výhybku stanice. Zpětně najíždí na soupravu složenou ze šesti vozů typu „Y“, aby ji celou povytáhla před první výhybku. Mezitím co 735 sune vozy na kusou kolej 7, aby odstavila poštovní/zavazadlový vůz, náš brejlovec přes kolej 2, úvratí přes výtažnou kolej 2v se dostal do lokomotivního depa a rovnou si zamířil na kolej 103, aby natankoval životodárnou kapalinu/naftu. 735 odstavila poštovní/zavazadlový vůz a jede zpět před první výhybku, aby soupravu nasunula na kolej 1 až na kusou 1a, kde soupravu odstavuje. Vrací se pro vůz na kolej 7 a s ním míří na kolej 9, kde je sídlo pošty. Okem zahlédneme vlečkový vlak, který ještě stačil před příjezdem rychlíku, zajet na železniční vlečku. Á, dnes přivezly vzácné zboží, tři vozy plné banánů. Inu svátky.
Pod výpravní budovou na hlavní trati vyčkává nedočkavě na volno sergej s části manipulačního vlaku. Zbytek nákladní zátěže nechal v poslední stanici, kterou obsluhoval. Celý manipulační vlak by se nevešel do stanice Letonice a i tak je o něco delší. Bude muset zajet až do šturcu a pomoci 735, vozy rozposunovat. Stále svítí červená, až teď se nám vynořil motorový rychlík „Hlučan“ směřující do Uherského Hradiště, tentokrát na Ostravu, do nějakých Kunčic. Odbočka Výrová je volná a na návěstidle svítí zelená se žlutou. Manipulák se dává do pohybu a my si z kabiny lokomotivy během jízdy prohlédneme stanici. Míjíme odbočku a mírným stoupáním míříme do stanice. Po levé straně ve směru jízdy, vidíme vlečkový areál n.p. Potraviny a OVOCE-ZELENINA, kdy nám rosnička vesele šíbuje vozy s banány na kolej OZ. Po pravé straně vidíme odstavnou kolej pro osobní přípojné vozy. Zrovna od vozů odchází úklidová četa. Vozy jsou čisté a uklizené. Zde se odstavují jen výše zmíněné vozy z osobní vozby. Sergej zarachotil koly na výhybkách a pomalu se přibližuje po koleji 2 do šturcu. Zastavuje u zarážedla. Je to tak, tak. Ve spolupráci s 735 začíná koncert. My jej nebudeme rušit a jen v rychlosti si projdeme stanici a začneme hned u nákladového obvodu. Kolej 4 musí být neustále volná a na kusé koleji 4a se přistavují vozy s rychlozbožím. Na koleji 8 a 10 skladiště s rampou. Kolej 12 spolu s koleji 16 tvoří volná skládka, kolej 18 slouží víceméně Mototechně k vykládce osobních automobilů, koukáme že zrovna nám sjíždějí ze železničního vozu poslední škodovky. A kolej 20 ? Uhelné sklady, ikdyž snaha je postupně přecházet s topením na plyn, postup plynařů je prachbídný. Koleje 6 a 14 tvoří něco jako koleje třídící. Lokomotivní depo o čtyřech kolejí 101 až 104 tvoří celé zázemí pro motorové lokomotivy a vozy. Páru už dávno odval čas. Koleje 101 a 102 končí v nové moderní lokomotivní remíze se sociálním zázemím. Houknutím nás pozdravil známý z barči, stojí u pískovacího zařízení pro doplnění suchého písku. Na koleji 103 náš brejlovec od rychlíku, tankuje a doplňuje potřebné maziva. Z cisterny stojící na koleji 104 stáčejí do podzemních nádrží naftu.
A na osobní částí stanice ? K odjezdu jsou připraveny dva osobní vlaky. První 820 se svými typickými přípojnými vozy 020 stojí na koleji 3 a na koleji 5a 810 s vozem 010. Na levé straně stanice máme poštu. Na koleji 7b podle potřeby vyčkává naše rosnička, která vypomáhá mimo vlečkového provozu i s přistavováním nebo odtahováním osobních přípojných vozů na kolej 3b. Kolej 5b slouží jako výtažná při manipulaci s vozů v poštovním dvoru.
Železniční stanice Letonice je hlavová je napojena na odbočku Výrová. Spodní trať simuluje provoz na hlavní trati a soupravy do Letonic se vracejí pomocí vratné smyčky. Kapacita vratné smyčky je dostačující pro pestré dění a obměn vlaků na trati do Letonic.
-m-
Přílohy
Letonice DFMB.jpg
milan ferdián
 
Příspěvky: 12189
Registrován: ned 30 pro, 2007 5:48 pm

Re: Plan kolajiska XII

Příspěvekod mlha » čtv 14 led, 2021 6:43 am

Ty reálie v popisu jsou úžasné Milane
H0/MODULY SLOVÁCKO/ep.IV
http://www.kzmslovacko.cz/.
Uživatelský avatar
mlha
 
Příspěvky: 2697
Registrován: ned 27 led, 2008 7:27 pm
Bydliště: Hluk

Re: Plan kolajiska XII

Příspěvekod milan ferdián » pát 15 led, 2021 6:51 pm

Kopřivná N/1:160 1500 x 670 FLEISCHMANN/piccolo/15° zdroj:mek (U.S.)

Je těžší a těžší najít vhodné náměty pro začátečníka a na malou plochu, aby kolejiště něčím modeláře zaujalo. Pomalu vše už bylo navrženo, nakresleno, ikdyž naše železnice stále vydávají pro naší modelovou železnici neustále nové podněty z reálných tratí. Při pohledu na plochu budoucího kolejiště a hledání, co na ni stvořit, jsem si vzpoměl na slezský semering. Stanice Kopřivná se podobá žst.Horní Lipová, výhybna Oblý, nedaleký vrch, jen zastávka Mramorová je inspirována názvem nedalekého místa na trati, kde se těžil a nakládal mramor na širé trati. Místem, stačilo se mrknout na hankové fota se zastávkou Mikulov v Krušných horách a zrcadlově zastávku otočit.
Námětem je trať stoupající do hor do prozatímně koncové stanici Kopřivná. Má dvě dopravní koleje, kusou manipulační s kapesním skladištěm a rampou, kousek volné plochy na složení našeho oblíbeného artiklu, uhlí. Zrušená lokomotivní remíza je kryta odvratem, ale v minulosti tam stála skládka uhlí a jako vzpomínka na zašlé časy stojí prozatím provozuschopný vodní jeřáb. Zda modelář bude reaktivovat remízu pro nocující stroj, např. 810, záleží na něm. Trať klesá v poměru 1:30, objíždí vrch, vnoří se do tunelu, aby levotočivým půlobratem se vynořila ve výhybně Oblý **. Ve výhybně mohou křižovat jen osobní krátké vlaky. V případě, že budeme potřebovat křižování s nákladním vlakem, osobní musí vjet na vedlejší dopravní kolej a vyčkat až nákladní vlak výhybnou projede. Výhybna je pro modeláře zpestřením modelového provozu na kolejišti. Výhybna se musí osadit návěstidly, zda světelnými nebo mechanikami toť další volba modeláře. Pokračujeme levotočivým obloukem, kde po levé straně stojí opěrná zeď nad ní vede výše naše trať.* Pravotočivým obloukem překra-
čujeme potok po kamenném obloukovém mostě, následuje další most a naše zmiňovaná zastávka Mramorová. Trať nám mizí v dalším tunelu, kde máme vratnou smyčku o třech průjezdných a dvou kusých kolejí pro vlakové soupravy. Záměrně byl skryťák kvůli plné ploše situován do předního místa z důvodu snazší manipulace s vozidly.
Poloměry oblouků jsou použity na traťové koleji R225,6 mm a staniční koleje R430 mm a R396,4 mm.
-m-

*V tomto úseku se lavírovalo zda opěrná zeď nebo krátký tunel. Protože modeláři si většinou přeji, co nejvíce odkrytou širou trať, volba padla na opěrnou zeď.
** Nesnažte se výhybnu adaptovat na stanici. Výhybna je položena ve stoupání.
-m-
Přílohy
ram_kolejiste mek.jpg
ram_kolejiste mek.jpg (14.01 KiB) Zobrazeno 14518 krát
Kopřivná DF MB.jpg
milan ferdián
 
Příspěvky: 12189
Registrován: ned 30 pro, 2007 5:48 pm

Re: Plan kolajiska XII

Příspěvekod milan ferdián » ned 24 led, 2021 11:53 am

Büchetbahn skrytá I.epocha N/1:160 2000 x 1100 MINITRIX/15° zdroj: Rostikator (U.S.)
.........................................
Přílohy
Büchetbahn skrytá DF.jpg
milan ferdián
 
Příspěvky: 12189
Registrován: ned 30 pro, 2007 5:48 pm

Re: Plan kolajiska XII

Příspěvekod HonzaM » ned 24 led, 2021 1:16 pm

milan ferdián píše:
Je těžší a těžší najít vhodné náměty pro začátečníka a na malou plochu, aby kolejiště něčím modeláře zaujalo.

Hledat stále nové náměty je zajímavé pro autora, jakým je například Milan, potřebuje naplnit další díly, účastníci této nebo obdobné diskuze také rádi vidí něco co dosud neviděli. Nováčka ale zpravidla zajímá jen aby bylo kolejiště funkční, je mu srdečně jedno, jestli kolejiště se stejným námětem už někdo postavil. Naopak mu může vyhovovat existence provozních zkušeností z kolejišť realizovaných. Kolik je modelářů, kteří trvají na tom aby stejné nebo podobné kolejiště nikdo neměl? Návrh “Kopřivná” je výsledkem snahy o odlišnost za každou cenu, bez ohledu na důsledky.
FREMO, Zababov N-scale
http://www.1ku160.cz
HonzaM
 
Příspěvky: 4532
Registrován: úte 05 úno, 2013 9:01 am
Bydliště: Praha

Re: Plan kolajiska XII

Příspěvekod Dan Buchtela » ned 24 led, 2021 1:35 pm

HonzaM píše:Návrh “Kopřivná” je výsledkem snahy o odlišnost za každou cenu, bez ohledu na důsledky.
A jaké jsou podle Tebe ty důsledky? Popiš, buď konkrétní...
Tvé vajdáření chápu jako názor raději už nic nekreslit, nepublikovat, vše dobré už bylo objeveno. Nebo?
Uživatelský avatar
Dan Buchtela
 
Příspěvky: 1182
Registrován: pon 13 srp, 2007 9:21 pm
Bydliště: okres ÚL

Re: Plan kolajiska XII

Příspěvekod milan ferdián » ned 24 led, 2021 1:44 pm

HonzaM píše:
milan ferdián píše:
Je těžší a těžší najít vhodné náměty pro začátečníka a na malou plochu, aby kolejiště něčím modeláře zaujalo.

Hledat stále nové náměty je zajímavé pro autora, jakým je například Milan, potřebuje naplnit další díly, účastníci této nebo obdobné diskuze také rádi vidí něco co dosud neviděli. Nováčka ale zpravidla zajímá jen aby bylo kolejiště funkční, je mu srdečně jedno, jestli kolejiště se stejným námětem už někdo postavil. Naopak mu může vyhovovat existence provozních zkušeností z kolejišť realizovaných. Kolik je modelářů, kteří trvají na tom aby stejné nebo podobné kolejiště nikdo neměl? Návrh “Kopřivná” je výsledkem snahy o odlišnost za každou cenu, bez ohledu na důsledky.
milan ferdián
 
Příspěvky: 12189
Registrován: ned 30 pro, 2007 5:48 pm

Re: Plan kolajiska XII

Příspěvekod HonzaM » ned 24 led, 2021 2:04 pm

Dan Buchtela píše:
HonzaM píše:Návrh “Kopřivná” je výsledkem snahy o odlišnost za každou cenu, bez ohledu na důsledky.
A jaké jsou podle Tebe ty důsledky? Popiš, buď konkrétní...
Tvé vajdáření chápu jako názor raději už nic nekreslit, nepublikovat, vše dobré už bylo objeveno. Nebo?

To určitě ne, jistě lze vymyslet a nakreslit hodně nového a zajímavého, mělo by to ale mít určité limity. V tomto konkrétním případě se mi nelíbí ty dva naprosto pravidelné kruhy v těsné blízkosti a fakt že na viditelné části není ani kousek přímé trati. V kombinaci s poměrně komplikovaným skryťákem může být to kolejiště provozně problematické (mám na mysli zastavování vlaků z důvodu špatného kontaktu v důsledku znečištěných koleček a kolejí, vykolejování a podobně). N-ko je na to hodně citlivé kvůli malé hmotnosti hnacích vozidel.
FREMO, Zababov N-scale
http://www.1ku160.cz
HonzaM
 
Příspěvky: 4532
Registrován: úte 05 úno, 2013 9:01 am
Bydliště: Praha

Re: Plan kolajiska XII

Příspěvekod juroH0 » ned 24 led, 2021 2:38 pm

Honzo, že sa Ti niečo nepáči stačí povedať raz a v jednom vlákne. Nemusíš s tým trolliť všade, nikto nato nieje zvedavý. To že Tvoj ,,ideál krásy'' je oblúky skryť a na rovine preháňať 7 vozový Railjet je pekné, ale zďaleka nie všetci to k šťastiu potrebujú. Ako už Ti bolo povedané, prekristapána vráť sa na zem (alebo si aspoň vypni internet)
H0(e), DCC, epocha II-III
7", 1:4
Uživatelský avatar
juroH0
 
Příspěvky: 906
Registrován: stř 11 dub, 2007 12:59 pm
Bydliště: Slovensko

Re: Plan kolajiska XII

Příspěvekod Polabský » ned 24 led, 2021 2:53 pm

Hezký den vespolek,
Milan zde opět dokazuje, že velmi dobře dokáže "z prdu kuličku".
Jeho varianty kolejišť, místy spíše soubory jednotlivých dioramat logicky pospojených průběžným pásem kolejí mne dostávají. A k tomu povětšinou i jakési zpodobnění smysluplného příběhu.
Většina "půůristů" a vykladačů pravdy s ním nesouhlasí a hledají na jeho tvorbě neustále chyby.
Ale většina kolejišť je s ohledem na prostorové možnosti pouze velmi, velmi silně zahuštěnou zkratkou.
Milan má přidanou hodnotu ve vytváření scenérií vyprávějící příběh.
Také ale dokáže vytvořit ve zkratce výsek scenérie, detail, který teprve průjezdem vláčků začne vyprávět divákovi příběh.
Mnohdy si ten příběh začne spontálně vyprávět sám divák.
Jeho náměty dávají možnost vnímavým duším se zasnít a já mu za tento způsob tvorby děkuji.

Komu jsem letos ještě nepopřál úspěšný rok 2021, tak to činím nyčko a ostatním hezký den,
Polabský
Polabský
 
Příspěvky: 856
Registrován: ned 26 úno, 2012 7:45 pm

Re: Plan kolajiska XII

Příspěvekod jafobe » ned 24 led, 2021 4:09 pm

HonzaM píše:
Dan Buchtela píše:
HonzaM píše:Návrh “Kopřivná” je výsledkem snahy o odlišnost za každou cenu, bez ohledu na důsledky.
A jaké jsou podle Tebe ty důsledky? Popiš, buď konkrétní...
Tvé vajdáření chápu jako názor raději už nic nekreslit, nepublikovat, vše dobré už bylo objeveno. Nebo?

To určitě ne, jistě lze vymyslet a nakreslit hodně nového a zajímavého, mělo by to ale mít určité limity. V tomto konkrétním případě se mi nelíbí ty dva naprosto pravidelné kruhy v těsné blízkosti a fakt že na viditelné části není ani kousek přímé trati. V kombinaci s poměrně komplikovaným skryťákem může být to kolejiště provozně problematické (mám na mysli zastavování vlaků z důvodu špatného kontaktu v důsledku znečištěných koleček a kolejí, vykolejování a podobně). N-ko je na to hodně citlivé kvůli malé hmotnosti hnacích vozidel.

Neřekl bych že to je "výsledkem snahy o odlišnost za každou cenu, bez ohledu na důsledky". Svým způsobem to je pořád něco nového, i když se to některým lidem může jevit jako stejné... A pokud máš nějaký nový zajímavý nápad co navrhovat, proč něvytvoříš alespoň nějakou skicu své myšlenky? Řekl bych že Milan F. nebude proti novým podnětům, pokud mají nějaký rozumný základ a předpoklad zajímavého provozu. :wink:

Pokud bych se měl za sebe vyjádřit k návrhu Kopřivné:
Ano na limity to naráží skoro vždy, tím nějvětším je kompromis stavitele, prostor versus to co na něm chce provozovat.
Pokud se Ti nelíbí ta dva skoro kruhy tratě v těsné blízkosti vedle sebe které jsou viditelné schválně aby byl co největší kus tratě "odhalený" (navíc je tam i zmíněno ;) ) nikdo ti nebrání tu část níže položeného kusu tratě prohnat krátkým tunelem aby to tak netlouko do očí. Osobně bych si klidně uvařil šálek dobrého čaje a nad jeho vůní se přenesl v myšlenkách do míst jeho pěstování na dálném východě na úpatí himalájí a nechal se inspirovat Darjeeling Himalayan Railway... jen N-kové kolejivo vyměnit za nějaké H0e a pozměnit vozový park... Nemusíme přeci vše brát jako hotovou neměnnou věc, ale můžeme to vzít jako inspiraci pro něco co je našemu srdci bližší... Stavíme to přeci hlavně pro sebe. :wink:
Skryté nádraží bych právě naopak nepovažoval za nějak komplikované, ani ne špatně přístupné pro čištění či řešení nějaké komplikace v něm. Ano tady teda dost záleží na samotné konstrukci celé stavby... pokud se jako spodní základ celého kolejiště použije souvislá deska na kterou se bude postupně vršit vše další... problém to pak být může, ale to není problém návrhu samotného, ale problém stavitele že nezvážil dobře všechny pro a proti. Problémy se znečištěním koleček a jejich následků bych také spíš viděl jako problém modeláře a špatnou údržbu nejen vozového parku... a ne jako problém návrhu.

PS: Zbytek si prosím nikdo neberte osobně, to je jen můj problém vnímání dění zde na fóru prohnaný přes písemnou podobu. :wink:
Proč se mi jen poslední dobou zdá, že se to tu začíná rojit množstvím nespokojenců s čímkoli, dokonalých nad jejichž dokonalost není, a také "nostalgiků" co by nejraději "kroužli" bez nějakého smyslu provozu na něčem z dob minulého režimu protože jim to je líto opustit nebo změnit využití dané věci... :( Něříkám že nemám vztah ke starým věcem, ale vše má své meze.

Jaromír
Uživatelský avatar
jafobe
 
Příspěvky: 760
Registrován: úte 12 dub, 2011 8:01 pm

Další

Zpět na Diskuze k plánkům kolejišť

Kdo je online

Uživatelé procházející toto fórum: Žádní registrovaní uživatelé a 1 návštěvník