Tak v seznamu vozů je v číslování řady Zdv spousta děr. Jako neobsazené jsou intervaly 2-23300 až 2-23499, potom jsou vozy ZZdv, ale před jejich čísly a po nich je taky dost volna: 2-24000 až 2-24200 a pak 2-24300 až 2-24499. Tak nevím, na prototyp si něco vymyslím. Nejspíš nějaké číslo vyšší než mají ZZdv. Zdv 2-24442 by sice bylo pěkné

ale jde o prototyp, kdoví jak dopadne, takže bych to viděl na Zdv 2-24300. Uvidíme. I když logiku v tom nehledám žádnou. Nemělo se zasahovat do ložné plochy, všechny ty Zdv před ZZdv mají krytou budku, to je vidět z kratší délky ložné plochy, takže prostě sázím na čísla za ZZdv. Pak s ještě vyššími čísly jsou vozy jiné konstrukce. Je to taková sázka. Když se netrefím, kdo to pozná ? Než vyjde Kniha

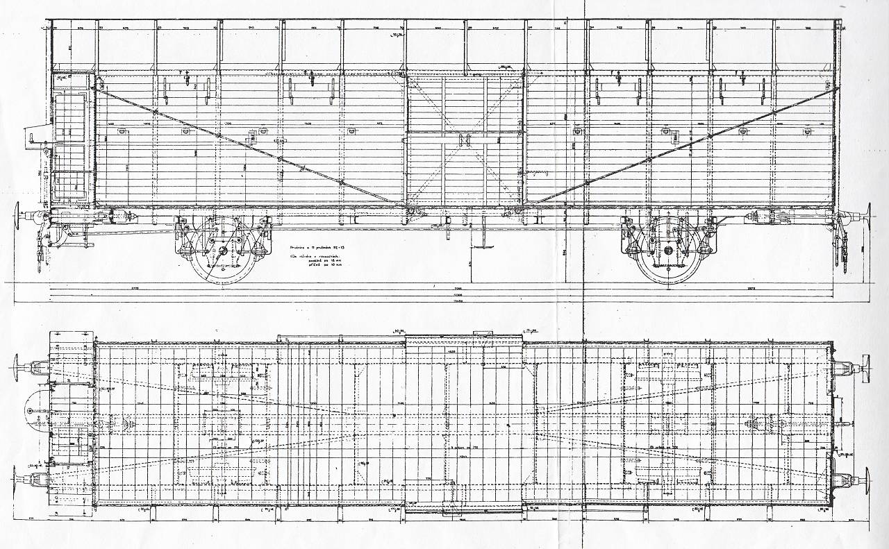
No a když už to má tu ruční brzdu tak bizarně umístěnou, tak to kolo udělám žluté. Na hnědé skříni se bude krásně vyjímat. Jen ho tak lehce napíchnu, kdyby se ukázalo, že má být červené, a bude nutné ho vyjmout a přestříkat. Holt, to modelaření je někdy řehole.