Požadavky na podklady - fotky, plány, ...

Skutečná železnice, odkazy na fotografie, zajimavá místa, setkání apod.

Moderátoři: Michal Dalecký, Jarda H., radekkrupka

Re: Požadavky na podklady - fotky, plány, ...

Příspěvekod rawen » sob 07 říj, 2017 5:36 pm

V reakci na Milanův příspěvek jsem začal sjíždět N sekci Zababov.cz, po Hankovi jsem ale pochopil, že mi chybí třetí Milanova knížka a vlastně je to v ní jinak...
No, kreslení mám rád, pohraju si. Je to stavba zadarmo. :)

Hanku, děkuji za podrobný popis nákladní dopravy. Překvapil mne cukrovar, protože v brožuře "Cukrovarnictví a železnice" je naprosto okrajově a nějak jsem s ním nepočítal.
Vlečka do Papcelu byla severně na úrovni benzinky?

Díky, Radek
rawen
 
Příspěvky: 1962
Registrován: stř 08 dub, 2009 10:42 am
Bydliště: Prostějov

Re: Požadavky na podklady - fotky, plány, ...

Příspěvekod hank » sob 07 říj, 2017 7:46 pm

rawen píše:Vlečka do Papcelu byla severně na úrovni benzinky?


Skoro. Odbočovala z traťové koleje přes silnici doleva ještě před krajní výhybkou severního zhlaví dopravny.
... i my dědci ještě můžeme být všelijak užiteční...
Es ist viel später als du denkst.
hank
 
Příspěvky: 6900
Registrován: stř 24 čer, 2009 4:43 pm

Re: Požadavky na podklady - fotky, plány, ...

Příspěvekod rawen » ned 08 říj, 2017 3:06 am

Podezříval jsem teréní stopu v tomto místě https://mapy.cz/s/26LBP
Je to ono?

Radek
rawen
 
Příspěvky: 1962
Registrován: stř 08 dub, 2009 10:42 am
Bydliště: Prostějov

Re: Požadavky na podklady - fotky, plány, ...

Příspěvekod hank » ned 08 říj, 2017 7:35 am

rawen píše:Podezříval jsem teréní stopu v tomto místě https://mapy.cz/s/26LBP
Je to ono?

Radek


Ano. Ono je to fakt až naproti pumpě... Já jsem přišel pracovat do Litovle vcelku nedávno; vlečku už jsem v provozu nezažil a když se po roce 2010 trhaly koleje, tak už tam odbočná výhybka pochopitelně dávno nebyla. Nicméně ve výrobní/expediční hale (to je ta se dvěma řadami světlíků kolmo k silnici) je kolej zapuštěná do podlahy dodnes a zbytky koleje vedoucí kdysi do (dnes plynové) kotelny jsou ve fabrice na dvoře zřetelné taky.
... i my dědci ještě můžeme být všelijak užiteční...
Es ist viel später als du denkst.
hank
 
Příspěvky: 6900
Registrován: stř 24 čer, 2009 4:43 pm

Re: Požadavky na podklady - fotky, plány, ...

Příspěvekod ladiznet » čtv 09 lis, 2017 3:24 pm

Zdravím.

Existuje někde nějaký doklad o tom, jak vypadaly mosty v ranné éře železnice (v naších zemích), kdy se ještě používaly dřevěné konstrukce? (cca po roce 1870)
www.usTTi.cz - ústečtí modeláři
Uživatelský avatar
ladiznet
 
Příspěvky: 706
Registrován: sob 25 črc, 2009 4:04 pm
Bydliště: Ústí nad Labem

Re: Požadavky na podklady - fotky, plány, ...

Příspěvekod hank » čtv 09 lis, 2017 5:00 pm

ladiznet: Za prvé se tady protřepávala (a někde je doufám veřejně uložená - jestli není, mohu poslat) sbírka normálií spodní stavby kkStB; v ní jsou i jednoduché dřevěné propustky. (Normálie 50/U.)

Za druhé, jistě máš nebo aspoň znáš starou pomůcku Malé železnice D-1 Mosty. Tam jsou obecné zásady stavby dřevěných mostů i příklady dost velkých dřevěných mostních provizorií drážních i silničních; nicméně to, co bylo obvykle ve 20. století považováno za provizorium, mohl být v roce 1870 most i na celkem frekventované trati. Nechce se mi napsat "definitivní most", protože je nutno říct, že v Rakousko-Uhersku se aspoň u velkých společností takové mosty stavěly především kvůli rychlosti uvedení do provozu a s perspektivou brzké náhrady trvanlivějšími konstrukcemi. Jsou však známa provizória z poválečné doby, která byla provozována třeba i 10 let - mám tady (aspoň doufám) kopii výkresu provizorního dřevěného mostu přes Moravu v Uherském Hradišti, který byl nahrazen dnešní ocelovou konstrukcí až v roce 1955. Přes tento most jezdily - sice sníženou rychlostí - veselské lokomotivy 354.1 a 524.0, takže toho snesl dost.

Za třetí, US nakladatelství Kalmbach Books vydalo několikrát (já mám výtisk 4. vydání z roku 1998) výběr modelů mostů z časopisu Model Railroader ve své edici Model Railroad Handbook jako příručku č. 33 - jmenuje se to Model Railroad Bridges and Trestles (ISBN 9780890241288). V USA se stavěly větší dřevěné mosty a používaly se déle než v Evropě, nicméně zásady tesařské práce jsou platné obecně, takže i z tohoto zdroje lze čerpat.
... i my dědci ještě můžeme být všelijak užiteční...
Es ist viel später als du denkst.
hank
 
Příspěvky: 6900
Registrován: stř 24 čer, 2009 4:43 pm

Re: Požadavky na podklady - fotky, plány, ...

Příspěvekod ladiznet » čtv 09 lis, 2017 5:44 pm

hanku ... ty seš fakt borec :) Díky za supr info!
www.usTTi.cz - ústečtí modeláři
Uživatelský avatar
ladiznet
 
Příspěvky: 706
Registrován: sob 25 črc, 2009 4:04 pm
Bydliště: Ústí nad Labem

Re: Požadavky na podklady - fotky, plány, ...

Příspěvekod zmar » čtv 09 lis, 2017 7:21 pm

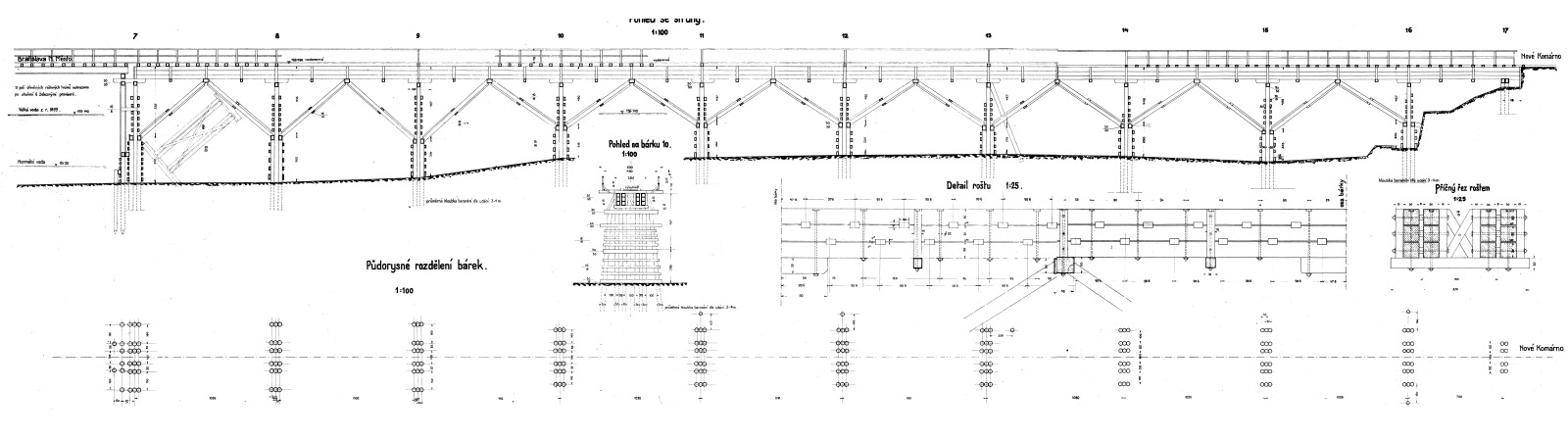
Mnoho dřevěných mostů i na hlavních tratích ČSD vydrželo až do dvacátých let. Nemám na mysli krátkodobá provizoria ani propustky, ale pořádné mosty. Zde je pár odkazů na materiály v Národním archivu, fond MŽ I, na které jsem náhodou narazil a poznamenal si je:
* karton 186, karton 218 : Bratislava - Komárno, ocelové provizorum na místě dvou shořelých polí dřevěného mostu přes Malý Dunaj
* kartony 402 : Čata - Šahy, náhrada dřevěných inundačních mostů
* karton 416, karton 531 : Prešov - Bardejov, náhrada dřevěných mostů o světlosti 6 až 8 m ocelovými provizorii
* karton 575, karton 594 : Břeclav - státní hranice, náhrada dřevěných inundačních mostů, jeden z mostů má délku 70 m
* karton 1197 : Břeclav - Znojmo, náhrada dřevěného mostu přes Dyji mostem ocelovým (rok 1931)
V těchto materiálech jsou zpravidla výkresy, ze kterých je zřejmá i původní dřevěná podoba. Bohužel žádný z těchto mně známých mostů není starý klasický systém Howe, který se mně osobně líbí nejvíce. Ten znám z doby první republiky už jen na úzkém rozchodu.

Edit: pro ilustraci přikládám původní most přes Malý Dunaj na trati Bratislava - Komárno. Na místě vydržel cca 30 let.
sejmout0001a.jpg
zmar
 
Příspěvky: 188
Registrován: sob 07 čer, 2014 7:00 am

Re: Požadavky na podklady - fotky, plány, ...

Příspěvekod ladiznet » pon 13 lis, 2017 6:01 am

zmar : díky!
www.usTTi.cz - ústečtí modeláři
Uživatelský avatar
ladiznet
 
Příspěvky: 706
Registrován: sob 25 črc, 2009 4:04 pm
Bydliště: Ústí nad Labem

Re: Požadavky na podklady - fotky, plány, ...

Příspěvekod Vladimír_B » pon 13 lis, 2017 7:41 am

Jenom pro zajímavost dodám, že dřevěné mosty přes trať, po kterých nám zbylo rozšířené místní pojmenování Černý most, vydržely ještě o cca 30 let déle...
>H0< Nejde? To slovo neznám. :-)
Uživatelský avatar
Vladimír_B
 
Příspěvky: 1234
Registrován: ned 02 bře, 2008 6:57 pm
Bydliště: Plzeň

Re: Požadavky na podklady - fotky, plány, ...

Příspěvekod zmar » pon 13 lis, 2017 9:17 am

Podle datování archivních spisů to vypadá že i poslední inundační mosty na trati z Břeclavi k rakouské hranici byly zrušeny až kolem roku 1931. Ty tedy sloužily víc než 90 let a o tom, co všechno po nich za tu dobu jezdilo, ani nemusím psát. Předpokládám, že mosty byly během doby postupně zesilované, aby unesly nové těžší lokomotivy.

Další dřevěné mosty byly na vlečkách. Tam mohly vydržet ještě déle. Znám spisy o mostu přes Jizeru na vlečce v Mladé Boleslavi nebo o mostu přes Bečvu na vlečce ve Vsetíně.

Bohužel jsem zatím nenašel žádný výkres normálněrozchodného mostu Howe z našich železnic i když tu dost jistě byly. Také klasický několikapatrový trestle ve stylu amerických železnic znám u nás jen z úzkého rozchodu a i to jen ve dvou případech, tedy jako výjimky.
zmar
 
Příspěvky: 188
Registrován: sob 07 čer, 2014 7:00 am

Re: Požadavky na podklady - fotky, plány, ...

Příspěvekod hank » pon 13 lis, 2017 10:03 am

zmar píše:...klasický několikapatrový trestle ve stylu amerických železnic znám u nás jen z úzkého rozchodu a i to jen ve dvou případech, tedy jako výjimky.


A co poválečné provizorium na tisovecké zubačce?
... i my dědci ještě můžeme být všelijak užiteční...
Es ist viel später als du denkst.
hank
 
Příspěvky: 6900
Registrován: stř 24 čer, 2009 4:43 pm

Re: Požadavky na podklady - fotky, plány, ...

Příspěvekod hank » pon 13 lis, 2017 10:20 am

Američtí mostaři tradičně označují základní druhy příhradových nosníků (angl. truss) jmény lidí, kteří je vymysleli/zavedli/zpopularizovali. Týká se to dřevěných i ocelových konstrukcí.

truss2.jpg
truss2.jpg (12 KiB) Zobrazeno 7875 krát

Seshora nosníky typu Warren, Howe a Pratt.

Edit: Mám teď nějakou větší termínovanou práci za prachy. 8) Až se z toho vyhrabu (snad koncem tohoto týdne, dá-li pámbu), tak bych sem mohl dát něco víc o těch dřevěných mostech, jestli bude zájem.
... i my dědci ještě můžeme být všelijak užiteční...
Es ist viel später als du denkst.
hank
 
Příspěvky: 6900
Registrován: stř 24 čer, 2009 4:43 pm

Re: Požadavky na podklady - fotky, plány, ...

Příspěvekod zmar » pon 13 lis, 2017 10:35 am

Děkuji, na to poválečné provizorium u Tisovce jsem si nevzpomněl. Obvykle krátkodobá provizoria vynechávám, protože mi nepříjdou typická pro modelování běžného provozu.

Žádný z mostů na obrázku není Howe. Ten je charakteristický tím, že dřevo je namáhané na tlak, zatímco pro přenášení tahu používá železná táhla. Tedy šikmé a vodorovné nosníky jsou dřevěné, ale na místě svislých mají být železná táhla. Když se do googlu zadá heslo Howe bridge, vyběhnou příslušné obrázky, jako třeba tento:
http://www.lonestarbridge.com/images/bridges/through_howe_bridge.jpg

Edit: Pokud jde o dřevěné příhradové mosty na železnici, tak jiné, než Howe ani nemá smysl uvažovat. Howe je nejdokonalejší a díky tomu se zdaleka nejvíc rozšířil. Respektive jiné mosty než Howe byly jen výjimkou. Například u nás na Zákamenské lesní železnici postavili ve dvacátých letech dva mosty Tuscherer, ale ty tam vydržely jen krátkou dobu.

Bohužel ani kresliči na ministerstvu železnic nevěděli, jak most Howe správně vypadá a ve svých nákresech je občas různě zpotvořili.

Tady je pár slov o osobě vynálezce a principu, v čem Howeho patent spočíval:
https://books.google.cz/books?id=bhywDQ ... we&f=false
zmar
 
Příspěvky: 188
Registrován: sob 07 čer, 2014 7:00 am

Re: Požadavky na podklady - fotky, plány, ...

Příspěvekod hank » pon 13 lis, 2017 12:14 pm

zmar píše:Obvykle krátkodobá provizoria vynechávám, protože mi nepříjdou typická pro modelování běžného provozu.


Ta "krátkodobá" provizoria po r. 1945 vydržela často 10 i více let.

zmar píše:Žádný z mostů na obrázku není Howe.


Dovolil bych si nesouhlasit, více viz třeba tady
https://www.garrettsbridges.com/design/howe-truss/
tady
http://www.historyofbridges.com/facts-a ... owe-truss/
i jinde.
... i my dědci ještě můžeme být všelijak užiteční...
Es ist viel später als du denkst.
hank
 
Příspěvky: 6900
Registrován: stř 24 čer, 2009 4:43 pm

PředchozíDalší

Zpět na Podklady ke stavbě

Kdo je online

Uživatelé procházející toto fórum: Žádní registrovaní uživatelé a 1 návštěvník