H0 - Slaný předměstí 3950x5700

Fórum pro stavbu, přestavbu a provoz modelového kolejiště.

Moderátoři: StandaR, milan ferdián, Michal Dalecký, Jarda H.

Re: Můj první pokus o kolejiště

Příspěvekod milan ferdián » úte 26 zář, 2017 7:15 am

Michal Vaniš píše:
milan ferdián píše:Objevil jsem vážnou konstrukční chybu :evil: .Projekt jsem pozastavil.Milan


"Náš ústav se vám, pane EDYS, mými ústy co nejsrdečněji omlouvá za toto politování hodné nedopatření, ke kterému dochází maximálně jednou za deset let!" (Jáchyme hoď ho do stroje) :mrgreen:

:lol: :lol: :lol:
Dobrý Michale,ale to není nic zvláštního,že se projekt zasekne.Podle dat co mám k dispozici se dobrý projekt rodil i několik měsíců,nemluvě kolik bylo vypracováno různých variant viz."Telgártská slučka".Jestli se počítá s tím,že projekt vypadne ze mne za pár dní,tak to je omyl :wink: .Je lepší mít počmáraných tisíce papírů než předělávat rozestavěné kolejiště.
Milan
milan ferdián
 
Příspěvky: 12164
Registrován: ned 30 pro, 2007 5:48 pm

Re: Můj první pokus o kolejiště

Příspěvekod milan ferdián » úte 26 zář, 2017 1:46 pm

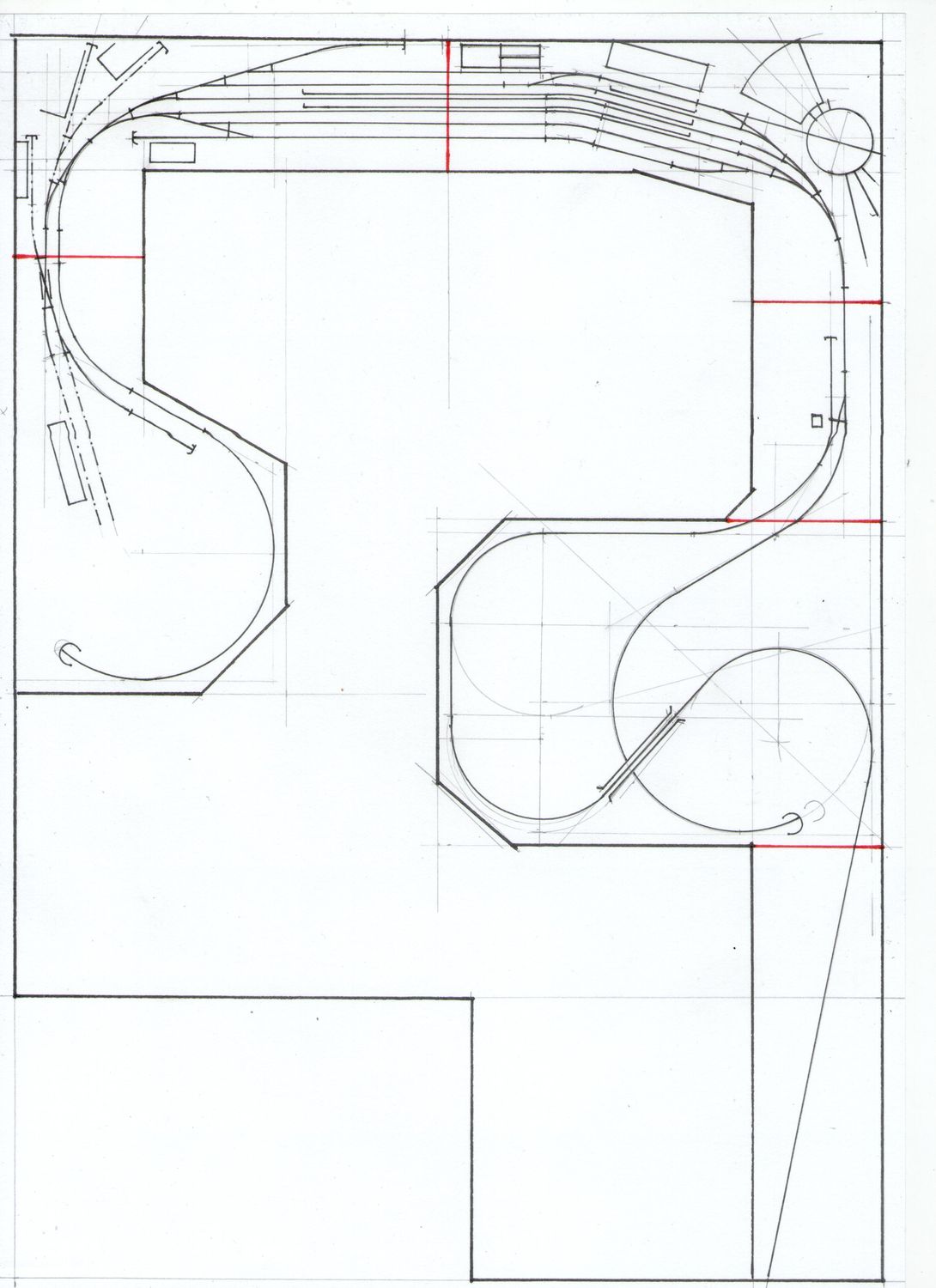
Studie II.Hlavní trať jsem musel přeložit.Viditelnou stanici kapku narovnat a ikdyž je to risk,pod viditelnou stanici je schován skryťák o devíti kolejích.Barva červená znamená rozdělení kolejiště na jednotlivé rámy kvůli malování. :oops: Jak tak koukám trasu vedlejší trati trochu směrově upravím,ať trasa nekopíruje kraje rámu v levém rohu.Počkáme si na to co řekne Edys :wink: .Milan
Přílohy
007Studie II. DF.jpg
milan ferdián
 
Příspěvky: 12164
Registrován: ned 30 pro, 2007 5:48 pm

Re: Můj první pokus o kolejiště

Příspěvekod Edys » úte 26 zář, 2017 4:07 pm

Napadlo mě nějaké doplnění. Předkládám jako návrh k diskuzi.

Nahoře v tunelu by trať odbočila dolů do skrytého nádraží což by umožňovalo větší rozmanitost provozu na kolejišti. Vedla by pravděpodobně za kulisou. Do přední části pravé strany dát hlubinný důl a uhlí z něho vozit do elektrárny která by byla v pravém horním rohu. Bohužel z důvodu stoupání trati by byl možná vjezd jen z jedné strany ale přes tu odstavnou kolej by to šlo.

Nevím jestli by to geometricky a výškově vyšlo.

Prosím o názory. Není to úplná blbost?
007Studie II důl_2.jpg
Stavím pro zábavu ne pro 100% věrohodnost. Zábava je to oč tu běží.
http://www.moje-vlacky.cz
Uživatelský avatar
Edys
 
Příspěvky: 626
Registrován: sob 05 lis, 2016 9:24 pm
Bydliště: Slaný, práce Praha

Re: Můj první pokus o kolejiště

Příspěvekod HonzaM » úte 26 zář, 2017 6:22 pm

Hlavní nádraží by mohlo být celé v mírném oblouku, vypadalo by to přirozeněji. Inspiraci je možné čerpat třeba v Prackovicích nad Labem.
FREMO, Zababov N-scale
http://www.1ku160.cz
HonzaM
 
Příspěvky: 4428
Registrován: úte 05 úno, 2013 9:01 am
Bydliště: Praha

Re: Můj první pokus o kolejiště

Příspěvekod JanoH0e » úte 26 zář, 2017 6:30 pm

Námet elektráreň- baňa by sa dal logicky realizovať len vtedy, pokiaľ by baňa s elektrárňou boli spojené cez skrytú stanicu, viz koľajisko Oslavany. Ale potom by to chcelo všetko prekopať.
JanoH0e
 
Příspěvky: 1420
Registrován: ned 31 srp, 2008 10:25 pm
Bydliště: Michalovce

Re: Můj první pokus o kolejiště

Příspěvekod MiG » úte 26 zář, 2017 6:37 pm

HonzaM píše:Hlavní nádraží by mohlo být celé v mírném oblouku, vypadalo by to přirozeněji. Inspiraci je možné čerpat třeba v Prackovicích nad Labem.

To sice ano, ale takto bude mít menší problémy se spřahováním v oblouku.
MiG
 
Příspěvky: 1106
Registrován: sob 14 úno, 2015 11:55 pm

Re: Můj první pokus o kolejiště

Příspěvekod sidlo » úte 26 zář, 2017 6:48 pm

Třeba tato stanice také není celá v oblouku https://mapy.cz/zakladni?x=15.5933873&y=49.5954527&z=16&base=ophoto
Milanovy plánky je hrozně těžké nějak opravovat, doplňovat nebo rozšiřovat.
Ten nápad s odbočkou v tunelu. Z výšky patra +1 (nad kolejí pod mostem) se dostat do výšky -1 (pod depo) na velmi krátkém úseku (hádám sotva 2 m) je nereálné.
Postavit důl na uhlí obklopený ze všech stran železnicí to asi taky nebude to pravé.
Uživatelský avatar
sidlo
 
Příspěvky: 3773
Registrován: ned 27 dub, 2014 7:32 am

Re: Můj první pokus o kolejiště

Příspěvekod hopeter » úte 26 zář, 2017 8:04 pm

Mě se víc líbil ten první návrh. Dělení by bylo podobně jenom řez nádraží by byl malinko šikmo. Nezkoumal jsem co tam kde bylo za chybičku ale ta část se dvěma mosty byla tuze moc hezká. Ten důl bych asi taky vynechal. Méně je většinou více... Sám teď dumám jestli se mě na koncové vejde šachta a alespoň nejnutnější pozemní příslušenství. :wink:
TT a G , epocha III / IV , jen si tak hraju ...,V jednoduchosti je síla... HOnza PETERa
Uživatelský avatar
hopeter
 
Příspěvky: 3057
Registrován: pát 20 pro, 2013 3:03 pm
Bydliště: Červený Kostelec

Re: Můj první pokus o kolejiště

Příspěvekod vmucha » úte 26 zář, 2017 9:55 pm

Pokud by důl byl tak blízko elektrárny, asi by to uhlí nikdo nevozil překládkou přes železnici.
Doupovská dráha 2. epocha TT
vmucha
 
Příspěvky: 663
Registrován: stř 10 bře, 2010 11:42 am
Bydliště: Mšené-lázně

Re: Můj první pokus o kolejiště

Příspěvekod michal_n_cz » úte 26 zář, 2017 10:19 pm

sidlo píše:Milanovy plánky je hrozně těžké nějak opravovat, doplňovat nebo rozšiřovat.
Ten nápad s odbočkou v tunelu. Z výšky patra +1 (nad kolejí pod mostem) se dostat do výšky -1 (pod depo) na velmi krátkém úseku (hádám sotva 2 m) je nereálné.
Postavit důl na uhlí obklopený ze všech stran železnicí to asi taky nebude to pravé.


Na všem jde něco vylepšit - prostě každý může mít jiný úhel pohledu a jiné preference - je třeba s i s to vzít to co se ti líbí a přiohnout si to aby se ti to líbilo. V mnoha Milanových pláncích je spoustu zajímavých věcí a zároveň tam vidím mnoho prostoru pro další tvůrčí činnost. Tady třeba když použiji větší kružítko tak na R4500-5000 se budou vozy podle mne spřahovat pěkně a nebude to tak zlomený :-)
Obrázek

Jinak s tím dolem v tom prostoru je to blbost - byla by to karikatura - nesmysl. Celkově bych zvážil použití toho depa a točny - nemá to tam žádný význam a v tom prostoru, tak jak to je je tam málo místa. Pokud důl nebo depo s točnou tak v té levé části. Celkově by stálo za to poštelovat ty směrové poměry na více místech, podle mne by to vyšlo i na 12° geometrii a udělat celou tu stanici do luku v tom hodně mírným radiusu. Ta varianta s tím obloukovým mostem byla dost odvážná - podle mne by ten most měl moc prudký poloměr a vypadal by komicky.
Uživatelský avatar
michal_n_cz
 
Příspěvky: 879
Registrován: stř 09 led, 2008 9:17 pm
Bydliště: Olomouc

Re: Můj první pokus o kolejiště

Příspěvekod HonzaM » stř 27 zář, 2017 5:34 am

MiG píše:
HonzaM píše:Hlavní nádraží by mohlo být celé v mírném oblouku, vypadalo by to přirozeněji. Inspiraci je možné čerpat třeba v Prackovicích nad Labem.

To sice ano, ale takto bude mít menší problémy se spřahováním v oblouku.

Oblouk by byl velmi mírný, což by nemělo vadit, nejsem ale hánulkář a neznám tedy jak se spřáhla chovají. Není určitě problém aby si to edys vyzkoušel. Vzhledově by to bylo o třídu lepší, tak jak je to na schematu asi žádné nádraží navypadá. Tady jde ovšem jen o schema a kreslení oblouku by bylo pracné.
Na levé straně předpokládám že do dolního patra povede spirála.
FREMO, Zababov N-scale
http://www.1ku160.cz
HonzaM
 
Příspěvky: 4428
Registrován: úte 05 úno, 2013 9:01 am
Bydliště: Praha

Re: Můj první pokus o kolejiště

Příspěvekod sidlo » stř 27 zář, 2017 5:40 am

HonzaM píše:tak jak je to na schematu asi žádné nádraží navypadá

S tím hodnocením bych byl opatrný. Již několikrát jsem se na fóru přesvědčil, že prakticky každá situace se někde v reálu vyskytuje. Další příklad s obloukem uvnitř dopravních kolejí které navazují na kratší a delší úseky koleje v přímé přesně tak jak je to na plánku.
https://mapy.cz/zakladni?x=15.6853846&y=49.7119636&z=17&l=0&base=ophoto&source=muni&id=5006
Uživatelský avatar
sidlo
 
Příspěvky: 3773
Registrován: ned 27 dub, 2014 7:32 am

Re: Můj první pokus o kolejiště

Příspěvekod Vladimír_B » stř 27 zář, 2017 6:06 am

Ahoj, jenom poznámka k dolu. Nemusíte vždy dělat Hrabovou, stačí udělat 2 koleje a zásobník http://www.zdarbuh.cz/wp-content/upload ... ubnany.jpg
akorát bych to na kolejiště spíš nedával. Ani tu elektrárnu. Nebo jenom jednu velkou vlečku, ale aby zabírala tak 1,5 dílu vlevo. Tam by se dala udělat i ta skrytá spojka do skryťáku. Možná (budu se rouhat) bych nádraží nacpal do jednoho rohu, aby bylo celé v oblouku s krátkými přímými, než "zlomená" zhlaví za cenu rovných kolejí. Podobně jako má Tombart (nové), ale tady na to není dost místa...
K depu: zvážit jestli to má cenu, k čemu. Štokra tam stejně neotočí, tak bych spíš navrhl obdélníkovou remízu vedle záhlaví k lokálce a točnu MOŽNÁ na vložený díl dovnitř mimo kolejiště, ale v H0 by to byl "kravsky velký" díl 300*300, aby to za něco stálo... Má to cenu?

Pozn. 1: ano, kdybych se chvilku snažil, tak si vzpomenu na jednokolejnou úpravnu uhlí a jednokolejnou elektrárnu :D ale...
Pozn. 2: proč pořád doly a elektrárny? Tam se nedá posunovat, pokud nemáte Hrabovou. Prostě navezete tkaloun a šmitec (a kyselina pro DEMI se nevozí furth, o TTO nemluvě). To už je pomálu lepší více malých vleček po hromadě (vlečkový hrozen), kde můžete šíbovat do (h)alelujá...
Pozn. 3: Petře, to není nic proti Tobě, mě se Hrabová tuze líbí. :wink:
>H0< Nejde? To slovo neznám. :-)
Uživatelský avatar
Vladimír_B
 
Příspěvky: 1234
Registrován: ned 02 bře, 2008 6:57 pm
Bydliště: Plzeň

Re: Můj první pokus o kolejiště

Příspěvekod Edys » stř 27 zář, 2017 7:13 am

Předně bych chtěl všem poděkovat za názory a návrhy. Děkuji

Hodně se mě líbí úprava od Michal_n_CZ Takhle bych to viděl jako optimalní. S tím že segment budou koleje v nádraží bez výhybek. Tedy až na ty dvě mezi 1 a 2 kolejí.

Uhlí a elektrárna je blbost, beru byl to jen návrh.

Ten velký díl vpravo byl hezčí v první studii. i když zase na druhou stranu se v této studii snažil Milan udělat vetší oblouk na hlavní trati. Co to nějak zkombinovat třeba takto ale nevím jestli by stihla ta trať vystoupat dost vysoko na most. Ještě by se dala dat do rovného úseky mezi oblouky vedlejší tratě vlaková zastávka. To by snad ničemu nevadilo.
00000001.jpg


Co se týká levé strany tak tam mě to nějak pořád nesedí ale nevím co s tím.
Stavím pro zábavu ne pro 100% věrohodnost. Zábava je to oč tu běží.
http://www.moje-vlacky.cz
Uživatelský avatar
Edys
 
Příspěvky: 626
Registrován: sob 05 lis, 2016 9:24 pm
Bydliště: Slaný, práce Praha

Re: Můj první pokus o kolejiště

Příspěvekod Tomas Lebeda » stř 27 zář, 2017 7:45 am

Myslím, že ta trať by nad most vystoupat nestihla. Proto to měl MF nakreslené tak jak to měl.
Takym myslím, že ta odbočka v tunelu v předchozí navrhované úpravě od Edyse je trochu blbost.
Proč bych měl přes 1/4 kolejiště stoupat nad odbočku do SN, abych potom opět do SN klesal.
To přehození depa na druhou stranu je možná dobrý nápad.
Zdá se, že je tam teď více místa než bylo v první variantě.
Tomas Lebeda
 
Příspěvky: 288
Registrován: úte 24 led, 2017 12:41 pm
Bydliště: Praha 6

PředchozíDalší

Zpět na Modelové kolejiště

Kdo je online

Uživatelé procházející toto fórum: Google [Bot] a 1 návštěvník

cron