Velká Paka II - kolejiště na půdě (TT)

Fórum pro stavbu, přestavbu a provoz modelového kolejiště.

Moderátoři: StandaR, milan ferdián, Michal Dalecký, Jarda H.

Re: Velká Paka II - kolejiště na půdě (TT)

Příspěvekod Vladimír_B » pon 20 lis, 2023 10:42 am

Ahoj, jen je trochu škoda těch krátkých dopravních kolejí v hlavní stanici...
>H0< Nejde? To slovo neznám. :-)
Uživatelský avatar
Vladimír_B
 
Příspěvky: 1234
Registrován: ned 02 bře, 2008 6:57 pm
Bydliště: Plzeň

Re: Velká Paka II - kolejiště na půdě (TT)

Příspěvekod StandaR » pon 20 lis, 2023 6:53 pm

Ahoj,

plán je to parádní, nejdřív jsem si říkal že je škoda těch dopravních kolejí, ale tuto oběť chápu. Jízda po dvoukolejce bude vypadat suprově. Pokud beru Malou Paku jako takovou upoutávku na co se můžeme těšit, tak už teď se těším na dokumentaci, ať už příjde kdykoliv :)

Chápu to tak že stanice bude (při)stavěná na kolejích Tillig? Nebo třeba jen podloží a pruty Code 75/60?
H0 V Epocha osobní, VI Epocha Nákladní

Víc změněných plánů, než kdy výrobci vyrobili modelů :)
StandaR
 
Příspěvky: 784
Registrován: stř 18 říj, 2006 4:15 pm
Bydliště: Brno-Jih

Re: Velká Paka II - kolejiště na půdě (TT)

Příspěvekod Zlámalík » pon 20 lis, 2023 8:27 pm

No jo, koleje delší neudělám, i když návrh byl - doprostřed Velké Paky vložit díl 25 cm. Jenže +25 tady znamená +25 po vjezdové návěstidlo a +25 od návěstidla k tunelu, aby se vlak neschoval, a aspoň jedněch +25 na druhé straně. A je to metr a ten tam nemám. Kompromisy jsou nutné a raději oželím pár vozů, neč celkový dojem z kolejiště.

Přístavba bude z... nó... :-D Současné výhybky jsou EW2 Tillig. Koleje u peronů taky Tillig, koleje manipulační jsou ještě od Litomyského. Vypadá to asi takhle a takhle (další fotky v galerii u mne na webu) a dlouho jsem zvažoval, zda do toho říznout, ale bude se to týkat jen konců zhlaví a koleje nejdál od budovy, takže jo. S ohledem na to, co tam je dnes a co chci stavět, to vidím na Tilliga na betonových pražcích. Můžu zkusit navléct pruty Code 70, ale musel bych zkusit, jak s tím budou dohromady vypadat výhybky. Vozidla snad projedou. A rád bych měl výhybky na betonových pražcích, ty v nové části.
TT/současnost: Zlámalíkovy mašinky
Uživatelský avatar
Zlámalík
 
Příspěvky: 3038
Registrován: pát 14 led, 2011 10:39 pm
Bydliště: Košíkov

Re: Velká Paka II - kolejiště na půdě (TT)

Příspěvekod Fox » úte 21 lis, 2023 9:29 am

Když vidím ty segmenty, mechaniku zvedání, pod tím skřínky... trochu se mi rosí čelo, kdybych si představil jako stavitele sebe. Tohle je už vyšší dívčí. Taky bych se bál, abych to udržel v rovině. Předpokládám, že skříňky pod tím tam jsou volně vložené a segmenty budou mít svoje "nohy" s možností rektifikace? Jak to vypadá na takové půdě s rovinností podlahy? Ale každopádně věřím, že to "zmákneš". :wink:
TT, DR5000, Z21, iTrain...
Uživatelský avatar
Fox
 
Příspěvky: 1449
Registrován: stř 02 bře, 2016 12:50 pm
Bydliště: kousek od Prahy

Re: Velká Paka II - kolejiště na půdě (TT)

Příspěvekod Zlámalík » úte 21 lis, 2023 11:01 am

Foxi, ničeho se neboj, tohle zvládne každý. Já jsem taky líný a nechci si přidělávat práci, proto to řeším takto. Nicméně jsou tam jisté "výzvy" :D
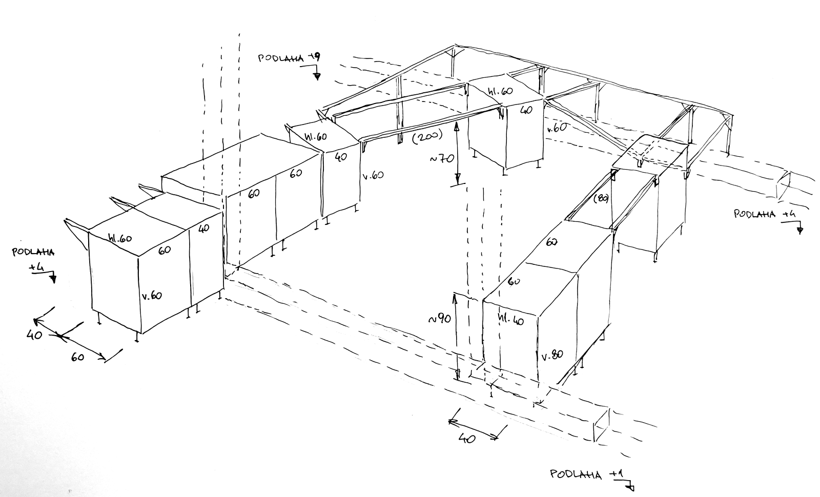
Rovinu si škrtni, celá půda letí o 10 cm úhlopříčně a srovnat to nepůjde. Půdu navíc přetínají dva vazné trámy - jeden u vstupu, je vidět na náčrtku levé strany, druhý vede napříč před štítem, tedy pod středovou částí kolejiště.

Ty skříňky jsou právě řešení: počítám s kuchyňskými skříňkami IKEA, se kterými mám mnoho let zkušeností. Nohy jsou stavitelné a můžu si dovolit, co potřebuju. Vezmu křížový laser, vyznačím osu místnosti. Odměřím a sesadím to na pozice, svrtám k sobě, přenesu rovinu naproti, sesadím, svrtám. Tím získám 4 bloky skříněk s pevnou pozicí a mám daný základ. Mezi ně pak natáhnu z hliníkových profilů příčky. Profily jsou v různých sílách a dají se kombinovat. Na takto vzniklou rovinu se naskládají segmenty dolního patra.
Profily se dají spojit různými spojkami a jsou k nim dostupné i rektifikační nohy. Dalo by se to i sestavit z hliníku úplně celé a skříňky mít volně, ale byla by to dvojí práce, dvojí konstrukce a dvojí cena. Tohle poslouží krásně. Kdyby šlo o cenu, daly by se i využít jekly a třeba je spojovat rohovými plastovými "ježky".

Měl jsem teď chvilku, tak jsem vám to nakreslil. Na obrázku mi lehce letí pravý dolní roh, je tady špatně vidět, že skříňky vpravo (pod Malou Paku) jsou o 20 cm vyšší, jak ty vlevo, ale dal jsem tam kótu. Některé detaily jsem vynechal pro přehlednost.

Sestava skříněk - návrh.jpg
TT/současnost: Zlámalíkovy mašinky
Uživatelský avatar
Zlámalík
 
Příspěvky: 3038
Registrován: pát 14 led, 2011 10:39 pm
Bydliště: Košíkov

Re: Velká Paka II - kolejiště na půdě (TT)

Příspěvekod jipol57 » úte 21 lis, 2023 12:28 pm

Kolik to vychází ke stropu? Nebylo by lepší udělat zvýšenou podlahu (z fošen), nad trámy a v rovině?
jipol57
 
Příspěvky: 1541
Registrován: pát 06 dub, 2018 5:18 pm

Re: Velká Paka II - kolejiště na půdě (TT)

Příspěvekod Zlámalík » úte 21 lis, 2023 2:59 pm

jipol57 píše:Kolik to vychází ke stropu? Nebylo by lepší udělat zvýšenou podlahu (z fošen), nad trámy a v rovině?

Nebylo. Od zámazu stropu do špice střechy je 270 cm, odečti cca 20 cm na krokve (deštění je na krokvích shora a izolace ještě nad tím). Teď, když udělám podlahu +6 cm nad hliněný zámaz, budu mít uprostřed průchozí výšku cca 240 -245 cm a bude se dát chodit po pruhu šířky cca metr dvacet, aniž by ses praštil. Kdybych šel s podlahou až nad trámy, jsem cca o 25 cm výš a průchozí prostor skoro nepoužitelný - a taky by se mi o 50 cm zúžilo místo pro kolejiště.
To už tam tak bylo, mám to vyzkoušeno - celá půda byla dřív zasypaná dvaceti centimetry škváry kvůli izolaci...
TT/současnost: Zlámalíkovy mašinky
Uživatelský avatar
Zlámalík
 
Příspěvky: 3038
Registrován: pát 14 led, 2011 10:39 pm
Bydliště: Košíkov

Re: Velká Paka II - kolejiště na půdě (TT)

Příspěvekod Fox » úte 21 lis, 2023 3:46 pm

No nazdar, není to pro stavitele úplně jednoduché. Ale máš to vymyšlené do detailu. A zaplať Bůh, za takový rozměrný prostor. Lepší využít na vláčky, než na obvyklé skladiště b.rdelu :idea:
TT, DR5000, Z21, iTrain...
Uživatelský avatar
Fox
 
Příspěvky: 1449
Registrován: stř 02 bře, 2016 12:50 pm
Bydliště: kousek od Prahy

Re: Velká Paka II - kolejiště na půdě (TT)

Příspěvekod Tomas Lebeda » úte 21 lis, 2023 10:39 pm

Ahoj, je to parádní. Úplně žasnu kolik se toho dá na takovém prostoru vymyslet.
Zdá se mi, že vlevo a v vpravo od staniční budovy v odbočné stanici jsou zkrácené výhybky.
To budou EW1? Ty vypadají dost odlišně od EW2, aby to nepůsobilo rušivě.
Tomas Lebeda
 
Příspěvky: 288
Registrován: úte 24 led, 2017 12:41 pm
Bydliště: Praha 6

Re: Velká Paka II - kolejiště na půdě (TT)

Příspěvekod Zlámalík » úte 21 lis, 2023 11:42 pm

Co se týká výhybek, tak současná stanice Velká Paka bude recyklovaná a využitá, takže do něčeho už šahat nebudu. Ale výhybky asi dobrý - jsou to překopané EW1 na celokovové s pružnými jazyky a myslím to nekazí zas tolik:

U depa - obě levé jsou EW1:

ŽP2_náhled_JPG.jpg

U skladiště - EW 1 vlevo u budovy:

P1080219.jpg


No a co se vejde - já měl jiné verze, dlouho. Kde toho nebylo tolik a za nádražím byly roztažené plochy na průmyslovou zónu a kontejnery. Vypadalo to jako obrácená perspektiva, trochu... Až najednou jsem nakreslil tohle - a tím, jak je tam v pohledu od stanice hodně věcí, to dostává měřítko - vypadá to, že nádraží je vlastně velké, když se za něj vejde tolik různých věcí. Musím ale vyseknout poklonu Milanovi Ferdiánovi za jeho ideu, jak napojit nákladní část stanice - vlastně "obkročit" ty původní čtyři koleje a napojit to samostatně jakoby zvenku. Tím to strašně získalo. Zase si vemte, že stanice, i když někdo namítá krátké koleje, má přes hroty vnějších výhybek délku dva metry šedesát - to taky není úplně málo. Tady je pohled, jaký naskytne obsluze:

Pohled na stanici.jpg
TT/současnost: Zlámalíkovy mašinky
Uživatelský avatar
Zlámalík
 
Příspěvky: 3038
Registrován: pát 14 led, 2011 10:39 pm
Bydliště: Košíkov

Re: Velká Paka II - kolejiště na půdě (TT)

Příspěvekod Dusan » stř 22 lis, 2023 7:39 am

Kdyby jsi tu silnici pod most vedl zepředu z druhé strany,jakože levá zatacka, vypadalo by to lépe.
HO(N),DCC,ep.II.-III.
Uživatelský avatar
Dusan
 
Příspěvky: 1357
Registrován: ned 04 úno, 2007 4:48 pm
Bydliště: Brno

Re: Velká Paka II - kolejiště na půdě (TT)

Příspěvekod Tomas Lebeda » stř 22 lis, 2023 10:08 am

Zlámalík píše:Co se týká výhybek, tak současná stanice Velká Paka bude recyklovaná a využitá, takže do něčeho už šahat nebudu. Ale výhybky asi dobrý - jsou to překopané EW1 na celokovové s pružnými jazyky a myslím to nekazí zas tolik:

Tak tomu rozumím, máš to hezky promyšlené.
Tomas Lebeda
 
Příspěvky: 288
Registrován: úte 24 led, 2017 12:41 pm
Bydliště: Praha 6

Re: Velká Paka II - kolejiště na půdě (TT)

Příspěvekod Zlámalík » stř 22 lis, 2023 8:41 pm

Dusan píše:Kdyby jsi tu silnici pod most vedl zepředu z druhé strany,jakože levá zatacka, vypadalo by to lépe.

Nevím - výjezd nahoru měl být směrem k nádraží a ta přidaná silnice kolem depa rozbíjí nepříznivý dojem "stanice podél okraje panelu".
Takhle:

11-VP s výjezdem.jpg

Otočit to doleva myslels třeba takto? Hmmm... Nevím... ?

Snímek obrazovky 2023-11-22 212831.jpg

P.S.: Už asi pomalu vím, proč nejde otevřít WT 16 převedený do verze 8, dělám na tom s Trainmaniakem a Bedlischem - je to něco v obsahu plánu, co to zboří. Ne samotná konverze verzí.
TT/současnost: Zlámalíkovy mašinky
Uživatelský avatar
Zlámalík
 
Příspěvky: 3038
Registrován: pát 14 led, 2011 10:39 pm
Bydliště: Košíkov

Re: Velká Paka II - kolejiště na půdě (TT)

Příspěvekod Dusan » stř 22 lis, 2023 9:46 pm

Ano, nějak takhle,klidně ještě víc ostřejší úhel. Prostě aby zmizely ty kolmice,které tvoří silnice, koleje,hrana panelů....Obsluzna cesta k budově zprava je OK, de facto naznacena.
Můj názor..... 8)
HO(N),DCC,ep.II.-III.
Uživatelský avatar
Dusan
 
Příspěvky: 1357
Registrován: ned 04 úno, 2007 4:48 pm
Bydliště: Brno

Re: Velká Paka II - kolejiště na půdě (TT)

Příspěvekod Zlámalík » stř 22 lis, 2023 10:09 pm

Rozumím, silnice kdysi šla zezadu od města, přes šraňky na kraji stanice. Pak stanici natáhli, silnici přeložili do podjezdu - a nějak se tam museli vytočit. Taková nějaká byla i moje idea, takže jen ten směr. Jasně. Nech mě promyslet, co bude teď tam vlevo - pole tam být nemusí, ale mělo by tam být něco, co dovolí volný pohled na vlak a nechá mu vyniknout. Dá se to i roztříštit na menší celky. Pořád mám v hlavě tenhle příjezd do Čáslavi od HavlBrodu - viz StreetView (pro pobavení si přeskoč přes koleje - pohled o 7 let starší). Ona Čáslav vůbec je velká inspirace. To dozraje :-)
TT/současnost: Zlámalíkovy mašinky
Uživatelský avatar
Zlámalík
 
Příspěvky: 3038
Registrován: pát 14 led, 2011 10:39 pm
Bydliště: Košíkov

PředchozíDalší

Zpět na Modelové kolejiště

Kdo je online

Uživatelé procházející toto fórum: Žádní registrovaní uživatelé a 1 návštěvník