

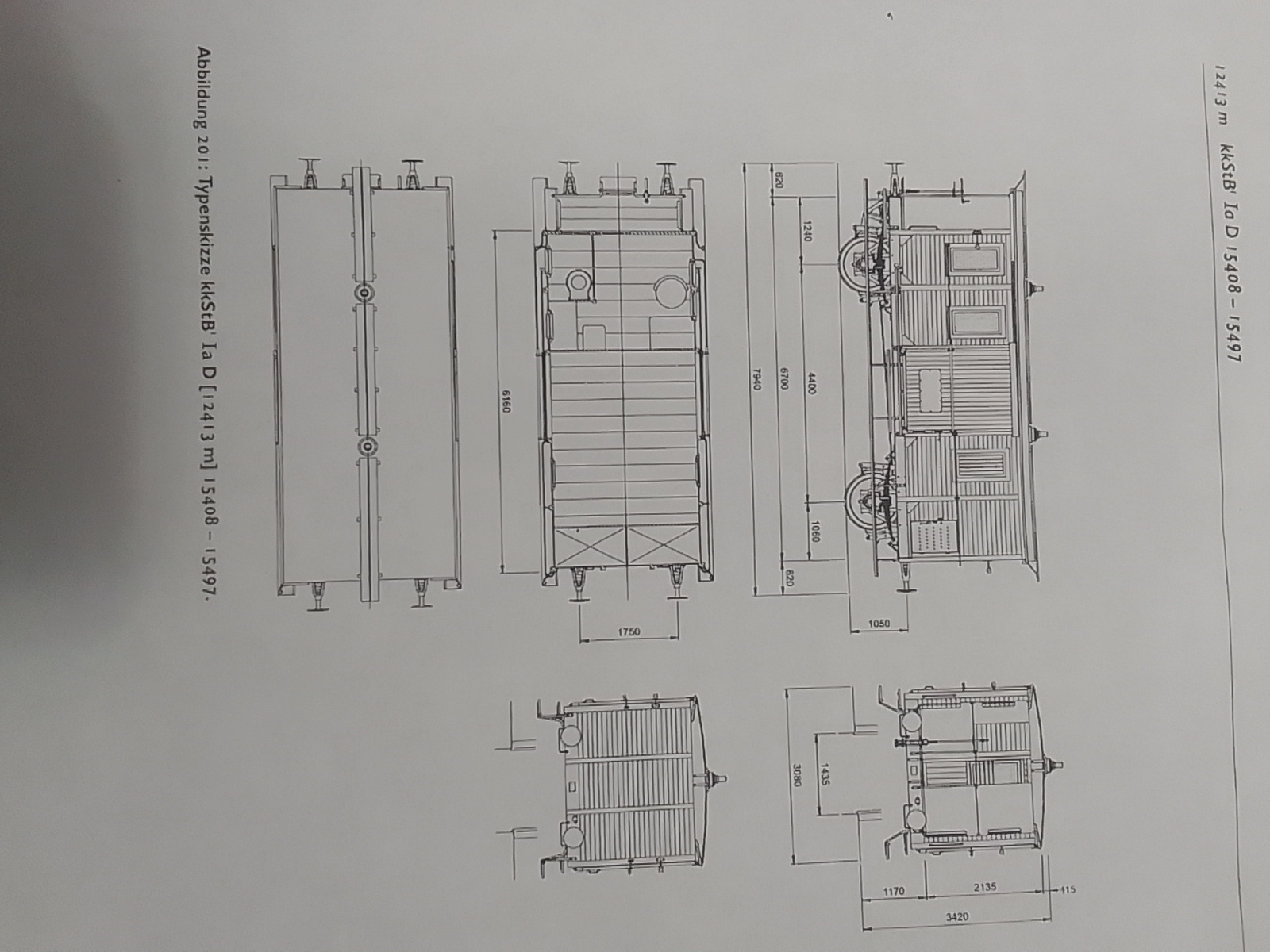
V současné době ladíme stavebnici vozu D, za základ jsem vybral první sérii vozu stavěnou pro ČSD, tedy vůz z číselné řady D 6-0500 až 583. Jednak je z míněn v knize Osobní vozy ČSD 1918 -1939, Mahel a kol., str.231 a 232, no a dále máme k dispozici podrobný výkres z letité monografie p. Maruny. A ukazuje se, že to nebude tak jednoduché. V knize má výkres vozu sofistikovaný přechodový můstek, ale na výkresu z monografie vůz přechod nemá. Text knihy dále uvádí, že část vozů byla vyrobena bez podélných lávek, což je doloženo fotograficky. Přikladám fotky ze stavby prototypu. Chybným přečtením kóty došlo k tomu, že má model širší okna. To už opravujeme. Nicméně jak je to s tím přechodem? Měla ho část vozů nebo je v knize chyba? Co se týče podélných lávek, tak budeme mít obě verze, zde problém nevidím. Při kreslení jednotlivých dílů jsme samozřejmě mysleli na více variant vozu, takže máme nakresleny tři verze čela-tu co je na fotce, pak s jednoduchou variantou přechodu a bez přechodu. Díky komunikaci s panem Berkou, který mě na tyto nesrovnalosti upozornil, jsem znova nahlédl do všech podkladů, které mám, a zjistil jsem, že dát správně dohromady jednotlivé varianty vozu nebude tak jednoduché, i když nákresy mám k dispozici. Nákresy jsou různé i pro vozy téhož čísla. Aby se to tedy usnadnilo, tak zde chci řešit vozy bez vyhlídky, tedy vozy D 6-0500 až 583 a jejich předchůdce. A napasovat je tak někdy do období přelomu 20.a 30.let před WWII. MODELÁŘ 2/1987, str.27 ukazuje vůz D6-1681 a zmiňuje vůz D 6-1686. Je tam nákres a foto odstaveného vozu. Die Reisezugwagen der kkStB, první díl, který vyšel, na str.284 a 286 ukazuje dva nákresy staršího provedení vozu, které k ČSD přešly pod čísly D6-1682 až 692 a D6-1676 až 679. Tyto varianty měly jednoduchý přechod a boční dveře uprostřed skříně, ale.....ty se posouvaly z prava doleva! Vůz z časopisu už má dveře posouvané zleva doprava a spoustu dalších odlišností, jako je jiné umístění trámků skříně, má doplněné šikmé kované výztuhy a i okna jinak rozmístěná. Je pravda, že vůz z Modeláře D 6-1681nespadá ani do jednoho z intervalů dle rakouské knihy, ale evidentně čelím několika problémům, které musím vyřešit, než tedy přistoupíme ke ztvárnění předchozích verzí vozu. Zcela zjevně se měnil směr posuvu dveří. Jak to bylo u vozů ve stavu začatkem 30.let? Byly rekonstrukce vozů tak rozsáhlé už před WWII nebo až po ní? Vozy D 6-1676 až 79 měly velmi malý služební oddíl, ten se později zřejmě rozšiřoval a doplňovala se okna do zvětšeného služebního oddílu. Nebo mohu ty vozy postavit dle nákresů v rakouské knize a dát jim zmíněná čísla? Na jiném vlákně zde, myslím, že na vlákně České a Moravskoslezské lokálky, je k dispozici výkres další varianty vozu s dveřmi uprostřed skříně. Byly vozy této varianty u ČSD? Ukazuje se, že naše nadšení do tohoto typu vozu trochu narazilo....děkuji za jakékoliv info které zamezí tomu, aby vznikl slepenec všeho možného a nemožného. Fotky ukazují prototyp modelu před stříkáním, takže co na modelu není, tak bude osazeno až po nabarvení. Stupačky a lávky budou z mořené překližky.