Moduly OstraMo

Vše co souvisí s moduly.

Moderátoři: StandaR, milan ferdián, Michal Dalecký

Re: Moduly OstraMo

Příspěvekod Myšpulín » ned 22 lis, 2020 2:13 pm

A já si vždycky myslel, že je tam dvojité soudečkové. Milane, můžeš trochu víc objasnit, i když uznávám, že ti tímto plevelíme vlákno? Díky a promiň.
H0, III až IV, ČSD, nemodelář
Myšpulín
 
Příspěvky: 1568
Registrován: stř 24 led, 2007 7:43 pm
Bydliště: Hostinné

Re: Moduly OstraMo

Příspěvekod cer.t » ned 22 lis, 2020 3:57 pm

cer.t
 
Příspěvky: 310
Registrován: stř 13 úno, 2008 10:17 pm

Re: Moduly OstraMo

Příspěvekod Mcx » ned 22 lis, 2020 6:49 pm

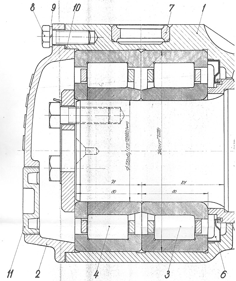
Ano je to tak jak je zjednodušeně uvedeno v odkazu. Ložiska se stahovacími pouzdry byly v ložiskové skříni 45V. Soudečková na nákladních vozech ČSD nebyla.
Co je na fotkách s prasklým vnitřním kroužkem je ložisková skříň 59V s dvojicí ložisek PLC 410-13/14, takže na nápravě jsou 4 ložiska, vnitřní ložiskové kroužky se při údržbě z nápravy nestahují, pouze při vadě ať již vizuální či defektoskopické. Ložiska se jinak z ložiskové skříně při údržbě vytahují, vymyjí, prohlédnou namažou a nasunou zpět na nápravu s vnitřními kroužky, zajistí a může to jít pod vagon.
Tady výkres lož. skříně 59V
lozisko_05.jpg

tady jeden exemplář již jetý po umytí, je na čep průměru 120 mm, takže ze sady PLC 410-13/14
lozisko_06.jpg

a tady nové ložisko ze sady PLC 410-15/16 s plastovou klecí, tedy ložisko na čep 130 m, ložisková skříň 80V
lozisko_07.jpg
Uživatelský avatar
Mcx
 
Příspěvky: 2811
Registrován: ned 06 lis, 2011 1:04 pm

Re: Moduly OstraMo

Příspěvekod jipol57 » ned 22 lis, 2020 7:34 pm

A co předcházelo tomu, když se po nějaké rekonstrukci zakázalo přimazávat ložiska? Taky to bylo znemožněno zavařením mazacího otvoru. Lepší ložiska? Lepší mazací tuk?
jipol57
 
Příspěvky: 1624
Registrován: pát 06 dub, 2018 5:18 pm

Re: Moduly OstraMo

Příspěvekod Mcx » pon 23 lis, 2020 7:11 pm

Koncem 80. let byl zaveden ložiskový tuk LV2 EPS - výrobce myslím kolínská rafinerie, který zajišťoval životnost tukové náplně mezi revizními lhůtami. Předtím byl v ložiskových skříních 80V, případně 74V, které namají domazávací otvory používán tuk Shell Alvania. Tak byl i zaveden do ložiskových skříní 59V, kde přestal být využíván domazávací otvor s plastovou zátkou. Tak se překryla navařeným páskem.
Uživatelský avatar
Mcx
 
Příspěvky: 2811
Registrován: ned 06 lis, 2011 1:04 pm

Re: Moduly OstraMo

Příspěvekod Mcx » pon 23 lis, 2020 8:11 pm

Ale od ložisek zpět k modulům. Včera jsem zadrátoval DCC, včetně banánků a zdířek na propojení se "sousedy", nakonec jsem dnes osadil skoro všechny přestavníky, až na jeden - takže srdcovky již mají šťávu přes přestavíky). Proletoval jsem spoje kolejnic (s vloženým lankem) a pak hodinu hledal, kde jsem udělal chybu - jo, jeden přívod jsem přehodil pravou s levou kolejnicí... no samozřejmě byl to ten poslední... já je postupně odpojoval... stále zkrat....až jsem chybu našel.
Tak už jezdím i po první koleji, takže další směr na na trjcestce vyzkoušen, opět je to ok.
Ještě že jsou to moduly, kde není problém otočit modul, postavit na stůl spodní stranou proti mně..... na nějakém deskovém kolejišti s nutností pracovat zespod, či natahovat se přes panel někde dozadu, to bych asi už nedal. Zlaté moduly.
jeden díl má již natřené kolejnice i z druhé strany, druhý čeká totéž a pak na stůl na osazení přestavníků
hluc_stanice_32.jpg

a tady se již letují spoje kolejnic, vždy ze strany kde sedím, pak si modul otočím a druhá strana... jo, zlaté moduly
hluc_stanice_33.jpg
Uživatelský avatar
Mcx
 
Příspěvky: 2811
Registrován: ned 06 lis, 2011 1:04 pm

Re: Moduly OstraMo

Příspěvekod Mcx » stř 25 lis, 2020 12:50 pm

Modul stanice byl zabudován zpět do domácího kolejiště/moduliště, došlo na několik drobných terénních úprav, drobné úpravy na položené koleji č.1, přestavníky jsou po montáži postavené na přímo, takže je sjízdná kolej č.1 a traťováci již mají ve stanici vozy se štěrkem.
Dnes jsem vytáhl flokovačku a lehce přeflokoval tu část, kde budou nějaké louky - tj. svahy náspu okolo nádraží, na jedné části plochy pod náspem chci udělat pole, proto není flokováno. Jinak klasika do Duvilaxu ředěného 1:1 směsi floků.
zde jsou vidět drobné opravy tvaru terénu Ostafixem
hluc_stanice_34.jpg

takto to vypadá mokré po flokování
hluc_stanice_35.jpg

trochu přiblížení - floky stojí všude
hluc_stanice_36.jpg
Uživatelský avatar
Mcx
 
Příspěvky: 2811
Registrován: ned 06 lis, 2011 1:04 pm

Re: Moduly OstraMo

Příspěvekod Mcx » sob 28 lis, 2020 2:20 pm

Traťovka navezla dostatečné množství štěrku a tak se začalo "rozvážet" po stanici. Jak v Hukovicích tak i dodatečně v Lipové jsem řešil prostor mezi kolejemi - pláň stanice, jejiž výšková úroveň je minimálně ve výši horní hrany pražců - nasypáním vrstvy štěku a pak teprve jemný prach, hlína.... a tím jsem zvedl terén mezi kolejemi na úroveň horní hrany pražců. Pražce u flexi PECO Code 75 mají 1,7 mm, takže jsem si řekl - když mezi koleje nalepím karton 1,5 mm mohlo by to být ok. To je ten začátek stanice od trojcestky. Postupně jsem přešel jen na 1 mm karton. U toho silnějšího se obtížně skrývala hrana mezi štěrkem v koleji a plochou mezi kolejemi.
Tady pohled do stanice Žulová, je zde osová vzdálenost kolejí 4,5 m, hlučínské stanice měly tam, kde bylo nástupiště mezi kolejemi - osovou vzdálenost kolejí dopravních 6 metrů - pruští bohatýři :D
hluc_stanice_37.jpg

Tady pohled na "hlučínskou" modulovou stanici s pracovním názvem - "Albertovec", ty plochy mezi kolejemi díky větším osovým vzdálenostem jsou větší, je budu muset trochu zazelenit, takto to vypadá divně
hluc_stanice_38.jpg

a tady pohled zblízka jak to vypadá kde je použit karton 1 mm, něco je tam ještě mokré
hluc_stanice_39.jpg
Uživatelský avatar
Mcx
 
Příspěvky: 2811
Registrován: ned 06 lis, 2011 1:04 pm

Re: Moduly OstraMo

Příspěvekod Sedli-CB » sob 28 lis, 2020 4:43 pm

Můžu se zeptat jakou barvou stříkáte pražce před zaštěrkováním? Prolezl jsem vzorníky a tipuji to na zemitou hnědou... Předem díky :!:
https://www.facebook.com/zubackanovahut
S*x je zábava chudých. My bohatí máme modelovou železnici :D
Uživatelský avatar
Sedli-CB
 
Příspěvky: 170
Registrován: ned 01 kvě, 2011 8:19 am
Bydliště: České Budějovice

Re: Moduly OstraMo

Příspěvekod Mcx » sob 28 lis, 2020 5:09 pm

Na pražce používáme stále stejnou Agama F3M. Není to vždy stříkané, třeba teď se mi kvůli "pár pražcům" nechtělo vytahovat pistoli a je to uděláno štětcem, byť u Agamy děláno štětcem je trochu jiná "matnost" povrchu.
Uživatelský avatar
Mcx
 
Příspěvky: 2811
Registrován: ned 06 lis, 2011 1:04 pm

Re: Moduly OstraMo

Příspěvekod Ronoath » ned 29 lis, 2020 10:45 am

Albertovec? Už se těším na nakládání koní :)

Vypadá to moc hezky!
H0, se zamračenými někde mezi roky 2001 - 2005 na Šumavě. V digitálu.
Uživatelský avatar
Ronoath
 
Příspěvky: 231
Registrován: úte 22 led, 2013 9:05 am
Bydliště: Prajzsko

Re: Moduly OstraMo

Příspěvekod jardaaa » ned 29 lis, 2020 10:54 am

Na ty koleje lihovka, syntetika nebo akryl?
jardaaa
 
Příspěvky: 156
Registrován: úte 07 dub, 2020 5:28 am
Bydliště: Hradec Králové

Re: Moduly OstraMo

Příspěvekod Mcx » ned 29 lis, 2020 1:25 pm

Ronoath píše:Albertovec? Už se těším na nakládání koní

No jo, je to na námět stanice Bolatice, ale nejsou to Bolatice. Vedle měl statek Lichnovský - Albertovec, on vlastně poskytl pozemky pro stavbu dráhy, protože něco za něco - byly zde ekonomické zájmy. Takže je to takové utajení původu stanice :D
jardaaa@atlas.cz píše:Na ty koleje lihovka, syntetika nebo akryl?

pražce jak jsem psal syntetika Agama F3M
kolejnice Agama Rez syntetika, ale dělají ji v poslední době málo matnou - tedy při použití štětcem /už jsem ji nějaký rok nestříkal) a něco Lifecolor ze sady "patinačních" akrylů - taky myslím rez tmavá, ale musím se podívat. Zde se hodí i různé hnědé třeba od Agamy, taky už byly použity.
Uživatelský avatar
Mcx
 
Příspěvky: 2811
Registrován: ned 06 lis, 2011 1:04 pm

Re: Moduly OstraMo

Příspěvekod Sedli-CB » ned 29 lis, 2020 2:41 pm

Mcx: Děkuji, tak jsem nebyl daleko od pravdy. Já asi použiju ve spreji RAL 8027 (taktéž zemitá hnědá), protože jí budu mít velkou spotřebu. Počítám s ní i jako se základní barvou na skály, kde pak odstíny doladím sienou přírodní, šedou, bílou, umbrou přírodní a v neposlední řadě směsicí různých barev (v základu chromoxid) na lišejníky...
https://www.facebook.com/zubackanovahut
S*x je zábava chudých. My bohatí máme modelovou železnici :D
Uživatelský avatar
Sedli-CB
 
Příspěvky: 170
Registrován: ned 01 kvě, 2011 8:19 am
Bydliště: České Budějovice

Re: Moduly OstraMo

Příspěvekod Mcx » pon 30 lis, 2020 8:22 am

Předělávka stanice Jeseník, modulová stanice jejíž stavba začala v roce 2003, v roce 2005 již byla v plném provozu. Od té doby absolvovala několik desítek modulových setkání. Byla to první stanice OstraMa a tak se nevyhnula některým "chybám" budovatelských modulových začátků. Jednou z nich je i geometrie výhybek - byly použity střední PECO, na manipulační koleje i krátké PECO, což v kombinací s některými oblouky dělalo někdy problémy. Nedokončena dodnes zůstala nádražní budova.....
Takže pohled do minulosti - tady se v roce 2004 začalo pokládat:
Jesenik_07.jpg

a v roce 2005 se již jezdilo
Jesenik_08.jpg

a takto vypadá geometrie zhlaví dnes včetně kusé koleje č.7, použity výhybky Tillig EW3, upravena geometrie navazujících oblouků - jsou nově položeny, přidána kusá kolej k čelní rampě, koleje zůstaly PECO Code 100. Trhat celá stanice se nebude :D
Jesenik_06.jpg
Uživatelský avatar
Mcx
 
Příspěvky: 2811
Registrován: ned 06 lis, 2011 1:04 pm

PředchozíDalší

Zpět na Moduly

Kdo je online

Uživatelé procházející toto fórum: Žádní registrovaní uživatelé a 0 návštevníků