od HonzaM » pát 02 kvě, 2025 9:52 am
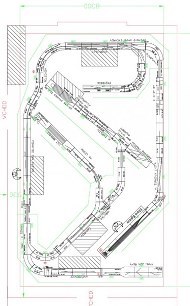
Spolky N ČSD a sekce N Zababov ve spolupráci se školním kroužkem školy Karla Jeřábka v Roudnici nad Labem uspořádali počátkem května setkání v malé školní tělocvičně modulové setkání. Je až neuvěřitelné, jak bohatý layout se Alešovi Boubelíkovi podařilo do relativně nevelkého prostoru umístit. V layoutu bylo několik stanic obsazených výpravčími (tři z nich měly instalovánu elektroniku MGP, z nich dvě z nich měly instalovánu plnou rychlostní návěstní soustavu ČSD). Provoz probíhal na základě grafikonu, také ten byl Alešovým dílem.
- Přílohy
-

-
